
28 Photos
PROJECT RERA ID : PR/GJ/AHMEDABAD/AHMEDABAD CITY/Ahmedabad Municipal Corporation/RN99AA09999/300622
Aditya Lakeview Bungalows

₹ 53.00 L - ₹ 62.50 L
Builder Price
See inclusions
3 BHK
Villa
842 - 915 sq ft
Carpet Area
Project Location
Lambha, Ahmedabad
Overview
- Sep'24Possession Start Date
- CompletedStatus
- 1.89 AcresTotal Area
- 91Total Launched villas
- Jun'22Launch Date
- New and ResaleAvailability
Salient Features
- Near. Labmha Mandir, Near. Ring Road
- Located at outskirts of the city, surrounded by green
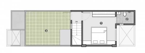
Aditya Lakeview Bungalows Floor Plans
Report Error
Our Picks
- PriceConfigurationPossession
- Current Project
Aditya Lakeview Bungalowsby B Gajera And CoLambha, Ahmedabad₹ 53.00 L - ₹ 62.50 L3 BHK Villa842 - 915 sq ftSep '24 - Recommended
N K Anantayaby Avishkar BuildconVasna, AhmedabadData Not Available3 BHK Apartment563 - 786 sq ftMar '28 - Recommended
Sivantaby Bakeri GroupVejalpur, AhmedabadData Not Available3 BHK Apartment945 - 1,040 sq ftNov '19
Aditya Lakeview Bungalows Amenities
- Club House
- Children's play area
- 24 X 7 Security
- Senior Citizen Siteout
- Landscape Garden and Tree Planting
Aditya Lakeview Bungalows Specifications
Flooring
Kitchen:
Vitrified Tiles
Living/Dining:
Vitrified Tiles
Master Bedroom:
Vitrified Tiles
Other Bedroom:
Vitrified Tiles
Toilets:
Ceramic Tiles
Walls
Exterior:
Acrylic Paint
Toilets:
Ceramic Tiles Dado
Interior:
Putty on Walls
Gallery
Aditya Lakeview BungalowsElevation
Aditya Lakeview BungalowsVideos
Aditya Lakeview BungalowsAmenities
Aditya Lakeview BungalowsFloor Plans
Aditya Lakeview BungalowsNeighbourhood
Aditya Lakeview BungalowsOthers
Contact NRI Helpdesk on
Whatsapp(Chat Only)
Whatsapp(Chat Only)
+91-96939-69347
Contact Helpdesk on
Whatsapp(Chat Only)
Whatsapp(Chat Only)
+91-96939-69347
About B Gajera And Co
B Gajera And Co
- 1
Total Projects - 0
Ongoing Projects - RERA ID
A company built on the foundation of trust, quality & integrity. A family that envisioned standards of authenticity and transparent practices in real estate. This journey dates back upto three decades, where the word of promise was set in stone and we thrived on delving into each logistical aspect of development and thereafter being true to each and every detail promised to our buyer. Having gained the knowledge and experience, we built a value system and a culture that our organisatio... read more
Similar Projects
- PT ASSIST
Avishkar N K Anantayaby Avishkar BuildconVasna, AhmedabadPrice on request - PT ASSIST
Bakeri Sivantaby Bakeri GroupVejalpur, AhmedabadPrice on request - PT ASSIST
Laurelsby Shri Ram InfrastructureGulbai Tekra, Ahmedabad₹ 1.90 Cr - ₹ 3.96 Cr - PT ASSIST
Shivalik Sharda Harmonyby Shivalik GroupGulbai Tekra, AhmedabadPrice on request - PT ASSIST
Sheetal Gharanaby Sheetal InfrastructureAmbli, Ahmedabad₹ 6.83 Cr - ₹ 14.57 Cr
Discuss about Aditya Lakeview Bungalows
comment
Disclaimer
PropTiger.com is not marketing this real estate project (“Project”) and is not acting on behalf of the developer of this Project. The Project has been displayed for information purposes only. The information displayed here is not provided by the developer and hence shall not be construed as an offer for sale or an advertisement for sale by PropTiger.com or by the developer.
The information and data published herein with respect to this Project are collected from publicly available sources. PropTiger.com does not validate or confirm the veracity of the information or guarantee its authenticity or the compliance of the Project with applicable law in particular the Real Estate (Regulation and Development) Act, 2016 (“Act”). Read Disclaimer
The information and data published herein with respect to this Project are collected from publicly available sources. PropTiger.com does not validate or confirm the veracity of the information or guarantee its authenticity or the compliance of the Project with applicable law in particular the Real Estate (Regulation and Development) Act, 2016 (“Act”). Read Disclaimer











































