

- Possession Start DateMay'15
- StatusCompleted
- Total Launched apartments112
- Launch DateJan'12
- AvailabilityNew and Resale
More about RND Angel Avenue
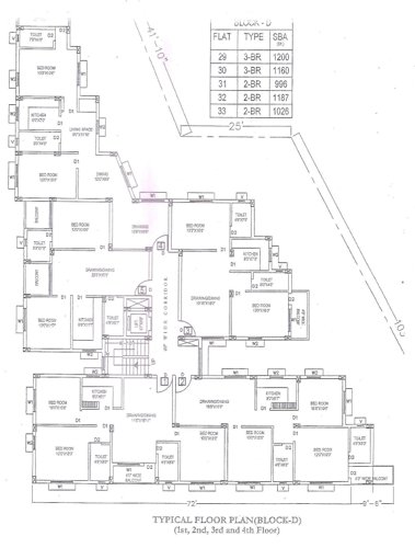
RND Builder Angel Avenue is a residential complex located at Balianta, Bhubaneshwar. The project containing a total of 140 spacious 1, 2 and 3 BHK apartments is presently under construction. The apartments measuring in sizes ranging from 562 to 1,200 sq ft are available to the buyers from the builder as well as via resale. The project comes with a host of luxurious amenities which includes gymnasium, play area for kids, clubhouse, rain water harvesting facilities, well pruned gardens, jogging tr...View more
Project Specifications
- 1 BHK
- 2 BHK
- 3 BHK
- Gymnasium
- Children's play area
- Club House
- Rain Water Harvesting
- Intercom
- 24 X 7 Security
- Jogging Track
- Power Backup
- Indoor Games
- Landscape Garden and Tree Planting
RND Angel Avenue Gallery
Payment Plans

About RND Builder

- Total Projects1
- Ongoing Projects0























