Pappas Venkat Flats


- Possession Start DateOct'13
- StatusCompleted
- Total Launched apartments4
- Launch DateOct'12
- AvailabilityResale
More about Pappas Venkat Flats
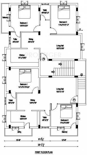
Launched by Pappas Builder, Venkat Flats, is a premium housing project located at Kovilambakkam in Chennai. Offering 2 BHK Apartment in OMR are available from 1200 sqft to 1250 sqft. This project hosts amenities like Power Backup etc. The project is Completed project and possession in Nov 13.
Project Specifications
- 2 BHK
- Power Backup
Pappas Venkat Flats Gallery
About Pappas Builder

- Years of experience25
- Total Projects12
- Ongoing Projects0





















