Geeyam Vaikuntham


- Possession Start DateJul'15
- StatusCompleted
- Total Launched apartments6
- Launch DateOct'14
- AvailabilityResale
Salient Features
- The project is equipped with amenities like landscaped gardens, swimming pool, olympic size swimming pool, tree plantation, rainwater harvesting, cycling and jogging tracks
- Accessibility to key landmarks
- Close to schools, banks
More about Geeyam Vaikuntham
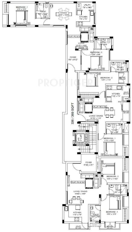
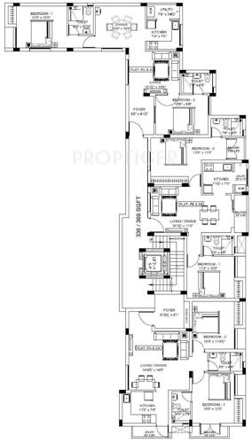
Geeyam Vaikuntham Chennai is a project offering 2 BHK apartments to the buyers that are priced between 1.48 and 1.65 crore on an average. The project consists of a total of 6 units while average home sizes range between 1022 and 1140 sq. ft. here. Top amenities offered to the buyers at this project include rainwater harvesting systems, landscaped gardens, 24 hour security services, car parking facilities, power backup facilities, common lighting, video door phone facilities and compound wall.Loc...View more
![HDFC (5244) HDFC (5244)]()
![Axis Bank Axis Bank]()
![PNB Housing PNB Housing]()
![Indiabulls Indiabulls]()
![Citibank Citibank]()
![DHFL DHFL]()
![L&T Housing (DSA_LOSOT) L&T Housing (DSA_LOSOT)]()
![IIFL IIFL]()
- + 3 more banksshow less
Project Specifications
- 2 BHK
- Rain Water Harvesting
- 24 X 7 Security
- Power Backup
- Car Parking
- Common Lighting Around The Building
- Compound Wall Around The Campus
- Jogging Track
- Landscape Garden and Tree Planting
- Video Door Security
Geeyam Vaikuntham Gallery
About Geeyam

- Years of experience25
- Total Projects7
- Ongoing Projects0
































