Malar Angelica


- Possession Start DateOct'14
- StatusCompleted
- Total Launched apartments6
- Launch DateDec'13
- AvailabilityResale
More about Malar Angelica
In the crowd of other residential projects, Angelica is an exceptional project with grand and majestic facilities. Sprawling over beautiful landscape, the property would heighten the aesthetic sense of the apartment. This magnificent project is positively the first step for getting the true essence of life, with the exclusive features you desired for. Seeing all the trends, the mesmerizing property of Angelica can rightly be termed as the new age home for the modern monarchs.
![HDFC (5244) HDFC (5244)]()
![Axis Bank Axis Bank]()
![PNB Housing PNB Housing]()
![Indiabulls Indiabulls]()
![Citibank Citibank]()
![DHFL DHFL]()
![L&T Housing (DSA_LOSOT) L&T Housing (DSA_LOSOT)]()
![IIFL IIFL]()
- + 3 more banksshow less
Project Specifications
- 2 BHK
- 3 BHK
- Rain Water Harvesting
- 24 X 7 Security
- Power Backup
- Closed Car Parking
- Separate Overhead Tank For Bore Well Water& Sump Water
- Water Storage
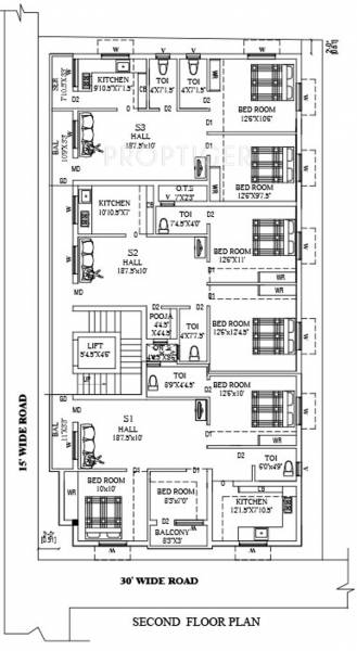
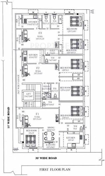
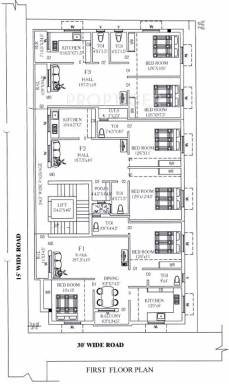
Malar Angelica Gallery

About Malar Constructions

- Years of experience30
- Total Projects12
- Ongoing Projects0































