

- Possession Start DateAug'17
- StatusCompleted
- Total Launched apartments6
- Launch DateJan'16
- AvailabilityResale
More about AN Builders Nungambakkam
AN Developers Nungambakkam has an availability of lavish apartments of great quality in the Nungambakkam region of Chennai. The apartments are all set for moving in purpose. Necessities like parks, banks, hospitals, bus stations, petrol pumps, ATMs, restaurants all is available in the neighbourhood. The other guarantees of the project are a contamination free setting along with covered parking space for each apartment, a gym, a club house, and security for 24 hours, a power back up system and mu...View more
![HDFC (5244) HDFC (5244)]()
![Axis Bank Axis Bank]()
![PNB Housing PNB Housing]()
![Indiabulls Indiabulls]()
![Citibank Citibank]()
![DHFL DHFL]()
![L&T Housing (DSA_LOSOT) L&T Housing (DSA_LOSOT)]()
![IIFL IIFL]()
- + 3 more banksshow less
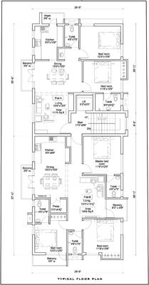
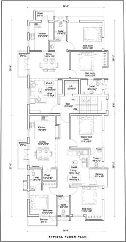
Project Specifications
- 2 BHK
- 3 BHK
- Car Parking
- Paved Compound
- Anti-termite Treatment
AN Builders Nungambakkam Gallery
About AN Builders

- Total Projects4
- Ongoing Projects0





























