
9 Photos
Amudha Elloraby Amudha
Price on request
Builder Price
1, 2, 3 BHK
Apartment
595 - 1,258 sq ft
Builtup area
Project Location
Perumbakkam, Chennai
Overview
- Feb'19Possession Start Date
- CompletedStatus
- 5Total Launched apartments
- May'18Launch Date
- ResaleAvailability
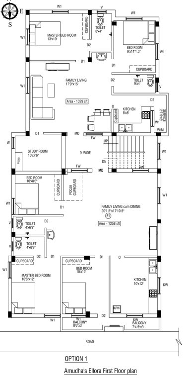
Amudha Ellora Floor Plans
- 1 BHK
- 2 BHK
- 3 BHK
| Floor Plan | Area | Builder Price |
|---|---|---|
![]() | 595 sq ft (1BHK+1T) | - |
Report Error
Our Picks
- PriceConfigurationPossession
- Current Project
Amudha Elloraby AmudhaPerumbakkam, ChennaiData Not Available1,2,3 BHK Apartment595 - 1,258 sq ftFeb '19 - Recommended
Garnetby Radiance Realty DevelopersPerumbakkam, ChennaiData Not AvailablePlot1,245 - 1,929 sq ftMar '23 - Recommended
Pokkishamby Isha HomesPerumbakkam, Chennai₹ 64.00 L - ₹ 90.22 L2,3 BHK Apartment942 - 1,328 sq ftDec '31
Amudha Ellora Amenities
- 24 Hours Water Supply
- Car Parking
- Gated Community
Gallery
Amudha ElloraElevation
Amudha ElloraFloor Plans
Contact NRI Helpdesk on
Whatsapp(Chat Only)
Whatsapp(Chat Only)
+91-96939-69347
Contact Helpdesk on
Whatsapp(Chat Only)
Whatsapp(Chat Only)
+91-96939-69347
About Amudha

- 25
Years of Experience - 25
Total Projects - 2
Ongoing Projects - RERA ID
Welcome to Amudha Civil Construction. We are in the field of construction business since 2001. Till today we have promoted many flats and individual houses, which has equaled to a total of more than 300000 square feet of quality work and has won the hearts of many happy customers up to date. What was started has a small business has now blossomed into a construction company that now has the resources, expertise and experience to handle large projects. Our main focus is promoting Apartments, inde... read more
Similar Projects
- PT ASSIST
Radiance Garnetby Radiance Realty DevelopersPerumbakkam, ChennaiPrice on request - PT ASSIST
Isha Pokkishamby Isha HomesPerumbakkam, Chennai₹ 64.00 L - ₹ 90.22 L - PT ASSIST
New Projectby Reputed Builder ChennaiPerumbakkam, Chennai₹ 1.11 Cr - ₹ 1.23 Cr - PT ASSIST
BSCPL Bollineni Zionby BSCPL InfrastructureSithalapakkam, Chennai₹ 59.29 L - ₹ 1.11 Cr - PT ASSIST
Navins Starwood Towers Phase IIIby Navins HousingMedavakkam, Chennai₹ 65.00 L - ₹ 1.04 Cr
Discuss about Amudha Ellora
comment
Disclaimer
PropTiger.com is not marketing this real estate project (“Project”) and is not acting on behalf of the developer of this Project. The Project has been displayed for information purposes only. The information displayed here is not provided by the developer and hence shall not be construed as an offer for sale or an advertisement for sale by PropTiger.com or by the developer.
The information and data published herein with respect to this Project are collected from publicly available sources. PropTiger.com does not validate or confirm the veracity of the information or guarantee its authenticity or the compliance of the Project with applicable law in particular the Real Estate (Regulation and Development) Act, 2016 (“Act”). Read Disclaimer
The information and data published herein with respect to this Project are collected from publicly available sources. PropTiger.com does not validate or confirm the veracity of the information or guarantee its authenticity or the compliance of the Project with applicable law in particular the Real Estate (Regulation and Development) Act, 2016 (“Act”). Read Disclaimer


























