


- Possession Start DateDec'14
- StatusCompleted
- Total Launched apartments10
- Launch DateJan'14
- AvailabilityResale
Salient Features
- Eco-friendly surroundings
- Peaceful surroundings
- Cineplex are some of the civic amenities
More about Chendur Sivabalan
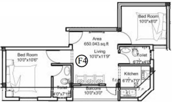
Sivabalan by Chendur Homes, located in Velachery, Chennai, offers 2 and 3 BHK apartments with the price range being between 36.5 and 62.4 lakh. There are 10 units in total. The apartment sizes range from 580 to 990 sq ft. The amenities include rainwater harvesting, 24x7 security, power backup, car parking, water storage, vaastu compliance, and lift. Situated in the south of Chennai, Velachery is a residential area that connects the IT corridor OMR, the GST Road and the premium business localitie...View more
![HDFC (5244) HDFC (5244)]()
![Axis Bank Axis Bank]()
![PNB Housing PNB Housing]()
![Indiabulls Indiabulls]()
![Citibank Citibank]()
![DHFL DHFL]()
![L&T Housing (DSA_LOSOT) L&T Housing (DSA_LOSOT)]()
![IIFL IIFL]()
- + 3 more banksshow less
Project Specifications
- 2 BHK
- 3 BHK
- Rain Water Harvesting
- 24 X 7 Security
- Power Backup
- Car Parking
- Lift(S)
- Vaastu Compliant
- Water Storage
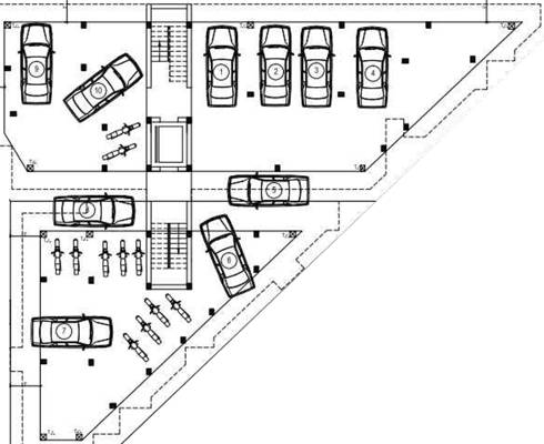
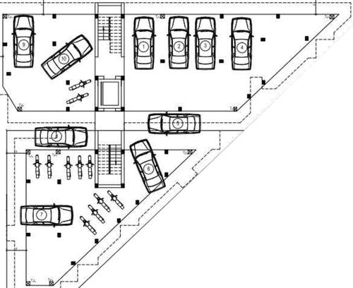
Chendur Sivabalan Gallery
About Chendur Homes

- Total Projects5
- Ongoing Projects3
























