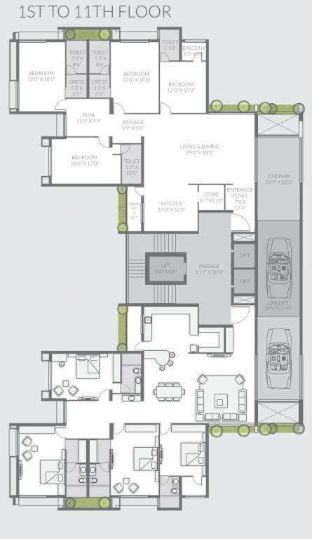
Floor Plan Image of Fomra Housing Hues

This floor plan image of Fomra Housing Hues consists of 2BHK+2T (1,091 sq ft) unit with the size of 1091 sq ft available for sale at Rs.8022.4248/sq ft.Fomra Housing Hues Floor available for approx. 91.32 L at Rs.8022.4248/sq ft.




