

- Possession Start DateJul'13
- StatusCompleted
- Total Launched villas20
- Launch DateSep'11
- AvailabilityResale
Salient Features
- Good investment opportunity
- 3 open side properties, spacious properties
- Lush greenery
More about Nanu Sapana Greensville
Sapana Greensville, by Nanu Estates, located in Margao, Goa, offers apartments, with the price being on request. The amenities include swimming pool, club house, 24x7 security, landscaped gardens, well lit street lights around the scheme, and individual compound wall with gate. Situated in suburb Goa Central, this is one of the popular and best places to have property in the city. The property rates have risen by 15% in the last 24 months. The most sought-after real estate builders of this area ...View more
Project Specifications
- 3 BHK
- 4 BHK
- Swimming Pool
- Club House
- 24 X 7 Security
- Well lit street lights around the scheme
- Individual compound wall with gate
- Landscape Garden and Tree Planting
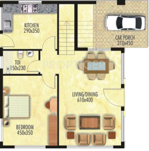
Nanu Sapana Greensville Gallery
About Nanu Estates

- Years of experience13
- Total Projects35
- Ongoing Projects3

























