

Price on request
Builder Price
Configuration
2 BHK
Builtup area
870 sq ft
Possession Status
Completed
Overview
- Possession Start DateFeb'15
- StatusCompleted
- Total Launched apartments20
- Launch DateFeb'14
- AvailabilityResale
More about Mourya Empire
Empire is a premium housing project launched by Mourya in Syamala Nagar, Guntur. These 2 BHK Apartment in Guntur Central are available from 870 sqft. Among the many luxurious amenities that the project hosts are Lift Available, Vaastu Compliant, Solar Heating System, Municipal Water, Car Parking etc.
Project Specifications
Doors
Internal:
Teak Wood Frame
Main:
Designer Door
Flooring
Balcony:
Ceramic Tiles
Kitchen:
Vitrified Tiles
Master Bedroom:
Vitrified Tiles
Toilets:
Ceramic Tiles
Living/Dining:
Vitrified tiles
Other Bedroom:
Vitrified tiles
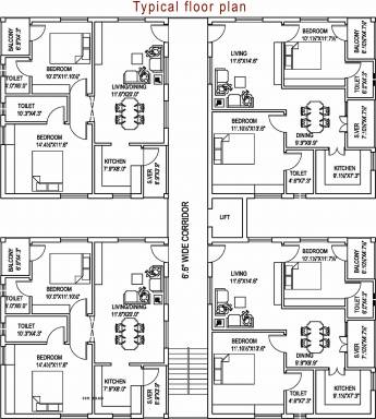
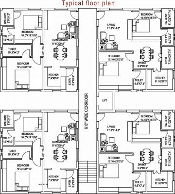
Mourya Empire Floor Plans
- 2 BHK
-
Mourya Empire Amenities
- Intercom
- Car Parking
- Lift Available
- Vaastu Compliant
- Municipal Water
- Solar Water Heating
Mourya Empire Gallery
About Mourya

- Total Projects12
- Ongoing Projects2














