
9 Photos
PROJECT RERA ID : Rera Not Required
Aashirwad Homes
Price on request
Builder Price
3 BHK
Apartment
1,326 sq ft
Carpet Area
Project Location
Sector 9, Gurgaon
Overview
- Jan'21Possession Start Date
- CompletedStatus
- 0.05 AcresTotal Area
- 4Total Launched apartments
- Dec'19Launch Date
- ResaleAvailability
Salient Features
- Shalom Hills International School (1.8 Km)
- Max Hospital Gurugram (0.3 Km)
More about Aashirwad Homes
.
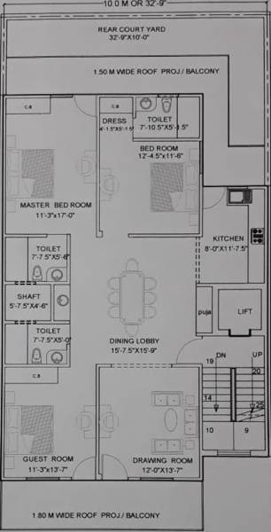
Aashirwad Homes Floor Plans
- 3 BHK
| Floor Plan | Carpet Area | Builder Price |
|---|---|---|
![]() | 1326 sq ft (3BHK+3T) | - |
Report Error
Our Picks
- PriceConfigurationPossession
- Current Project
Aashirwad Homesby Aashirwad Real EstateSector 9, GurgaonData Not Available3 BHK Apartment1,326 sq ftJan '21 - Recommended
The Palatialby Hero RealtySector 104, Gurgaon₹ 7.13 Cr - ₹ 8.77 Cr3,4 BHK Apartment1,446 - 1,808 sq ftDec '29 - Recommended
Estate & Clubby Indiabulls BuildersSector 104, Gurgaon₹ 4.20 Cr - ₹ 6.50 Cr3,4,5 BHK Apartment1,760 - 5,006 sq ftAug '29
Aashirwad Homes Amenities
- Car Parking
- Closed Car Parking
- 24X7 Water Supply
- Rain Water Harvesting
- Power Backup
- 24X7 Water Supply
- Modular Kitchen With 3 Wardrobe
- False Ceiling With Led Lights
Aashirwad Homes Specifications
Others
Frame Structure:
Earthquake resistant structure
Fittings
Kitchen:
Modular Kitchen
Gallery
Aashirwad HomesElevation
Aashirwad HomesFloor Plans
Aashirwad HomesOthers
Contact NRI Helpdesk on
Whatsapp(Chat Only)
Whatsapp(Chat Only)
+91-96939-69347
Contact Helpdesk on
Whatsapp(Chat Only)
Whatsapp(Chat Only)
+91-96939-69347
About Aashirwad Real Estate
Aashirwad Real Estate
- 1
Total Projects - 0
Ongoing Projects - RERA ID
Ashirwad Real Estate is a property development company in Pune. It is committed to developing projects that are an excellent investment for the present that is bound to bear fruits in the future. It believes in maintaining business ethics and transparency in all the dealings to create an enduring customer base. The firm believes in delivering high-quality construction to the customers to help them realize their dream of owning a home. It ensures that there is no compromise on the quality of its ... read more
Similar Projects
- PT ASSIST
Hero The Palatialby Hero RealtySector 104, Gurgaon₹ 4.55 Cr - ₹ 5.69 Cr - PT ASSIST
Indiabulls Estate & Clubby Indiabulls BuildersSector 104, Gurgaon₹ 4.20 Cr - ₹ 6.50 Cr - PT ASSIST
Godrej Summitby Godrej PropertiesSector 104, GurgaonPrice on request - PT ASSIST
Shapoorji Pallonji Joyville Gurugram Phase IIIby Shapoorji Pallonji Real EstateSector 102, Gurgaon₹ 69.90 L - ₹ 1.36 Cr - PT ASSIST
BPTP Amstoria Country Floorby BPTP LimitedSector 102, Gurgaon₹ 1.42 Cr - ₹ 3.90 Cr
Discuss about Aashirwad Homes
comment
Disclaimer
PropTiger.com is not marketing this real estate project (“Project”) and is not acting on behalf of the developer of this Project. The Project has been displayed for information purposes only. The information displayed here is not provided by the developer and hence shall not be construed as an offer for sale or an advertisement for sale by PropTiger.com or by the developer.
The information and data published herein with respect to this Project are collected from publicly available sources. PropTiger.com does not validate or confirm the veracity of the information or guarantee its authenticity or the compliance of the Project with applicable law in particular the Real Estate (Regulation and Development) Act, 2016 (“Act”). Read Disclaimer
The information and data published herein with respect to this Project are collected from publicly available sources. PropTiger.com does not validate or confirm the veracity of the information or guarantee its authenticity or the compliance of the Project with applicable law in particular the Real Estate (Regulation and Development) Act, 2016 (“Act”). Read Disclaimer






















