

- Possession Start DateNov'08
- StatusCompleted
- Total Launched villas20
- AvailabilityResale
Salient Features
- Schools, hospitals, banks in close vicinity
- 44 km driving distance to airport
- 10 km to secunderabad railway station
More about Skypx Enclave
Skypx Enclave is a gated community of 20 premium independent villas. Its built for you and around you. It gives you best of all possible worlds -away from city pollution but within 15 min drive from Secunderabad, lush greenery around the community, close proximity to NH7 (Medchal Highway), Rajiv Rahadari (Karimnagar Highway), Alwal Railway Station, Bolaram Railway station, Rythu Bazaar, Loyola Jr. College and Degree College, Little Flower High School, St Xavier’s Convent High School, St. A...View more
Project Specifications
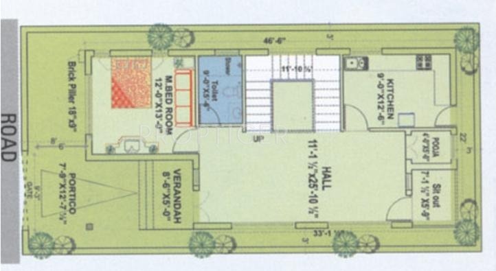
- 3 BHK
- Children's_play_area
- Rain_Water_Harvesting
- Power_Backup
- Car_Parking
- 24 Hours Water Supply
- Fire Fighting System
- Staff Quarter
Skypx Enclave Gallery
About Skypx

- Years of experience52
- Total Projects6
- Ongoing Projects1













































