
PROJECT RERA ID : WBRERA/P/NOR/2025/003332
Shiv Nibas
Price on request
Builder Price
2, 3 BHK
Apartment
404 - 611 sq ft
Carpet Area
Project Location
Belghoria, Kolkata
Overview
- Apr'26Possession Start Date
- LaunchStatus
- 0.08 AcresTotal Area
- 12Total Launched apartments
- Aug'25Launch Date
- NewAvailability
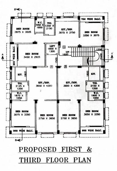
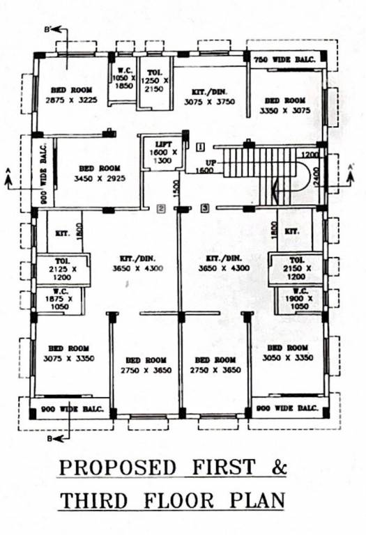
Shiv Nibas Floor Plans
- 2 BHK
- 3 BHK
Report Error
Our Picks
- PriceConfigurationPossession
- Current Project
Shiv Nibasby Shiv Con DeveloperBelghoria, KolkataData Not Available2,3 BHK Apartment404 - 611 sq ftApr '26 - Recommended
Lumiereby Orbit GroupCossipore, Kolkata₹ 87.13 L - ₹ 1.92 Cr2,3,4 BHK Apartment910 - 2,005 sq ftNov '23 - Recommended
Gatewayby Ambey GroupNew Town, Kolkata₹ 91.52 L - ₹ 2.58 Cr2,3,4 BHK Apartment620 - 1,749 sq ftMay '26
Shiv Nibas Amenities
- Closed Car Parking
- 24X7 Water Supply
Shiv Nibas Specifications
Others
Wiring:
Concealed Copper Wiring with Adequate Points
Points:
Kitchen
Windows:
Aluminium Sliding Windows
Switches:
Modular electrical switches
Frame Structure:
Earthquake resistant RCC framed structure
Doors
Internal:
Flush Door
Main:
Flush Door
Gallery
Shiv NibasElevation
Shiv NibasFloor Plans
Payment Plans

Contact NRI Helpdesk on
Whatsapp(Chat Only)
Whatsapp(Chat Only)
+91-96939-69347
Contact Helpdesk on
Whatsapp(Chat Only)
Whatsapp(Chat Only)
+91-96939-69347
About Shiv Con Developer
Shiv Con Developer
- 1
Total Projects - 1
Ongoing Projects - RERA ID
Similar Projects
- PT ASSIST
Orbit Lumiereby Orbit GroupCossipore, Kolkata₹ 87.13 L - ₹ 1.92 Cr - PT ASSIST
Ambey Gatewayby Ambey GroupNew Town, Kolkata₹ 91.52 L - ₹ 2.58 Cr - PT ASSIST
Loharuka Urban Greens Phase II Aby Loharuka GroupRajarhat, Kolkata₹ 69.59 L - ₹ 1.16 Cr - PT ASSIST
Purti The Varandaby Purti Npr Developers LLPLake Town, Kolkata₹ 1.88 Cr - ₹ 3.70 Cr - PT ASSIST
Purti Aqua 2by Purti Realty GroupRajarhat, KolkataPrice on request
Discuss about Shiv Nibas
comment
Disclaimer
PropTiger.com is not marketing this real estate project (“Project”) and is not acting on behalf of the developer of this Project. The Project has been displayed for information purposes only. The information displayed here is not provided by the developer and hence shall not be construed as an offer for sale or an advertisement for sale by PropTiger.com or by the developer.
The information and data published herein with respect to this Project are collected from publicly available sources. PropTiger.com does not validate or confirm the veracity of the information or guarantee its authenticity or the compliance of the Project with applicable law in particular the Real Estate (Regulation and Development) Act, 2016 (“Act”). Read Disclaimer
The information and data published herein with respect to this Project are collected from publicly available sources. PropTiger.com does not validate or confirm the veracity of the information or guarantee its authenticity or the compliance of the Project with applicable law in particular the Real Estate (Regulation and Development) Act, 2016 (“Act”). Read Disclaimer

























