
10 Photos
PROJECT RERA ID : Rera Not Required
MCK Pratibha
₹ 23.25 L - ₹ 38.50 L
Builder Price
See inclusions
1, 2 BHK
Apartment
465 - 770 sq ft
Builtup area
Project Location
Ultadanga, Kolkata
Overview
- Nov'19Possession Start Date
- CompletedStatus
- 7Total Launched apartments
- Dec'16Launch Date
- New and ResaleAvailability
Salient Features
- Spacious properties
- It parks
- Conviniently located near schools, colleges, malls, shopping, hospitals, restaurants
More about MCK Pratibha
.
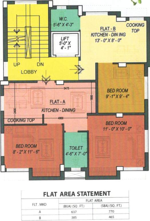
MCK Pratibha Floor Plans
- 1 BHK
- 2 BHK
| Floor Plan | Area | Builder Price |
|---|---|---|
![]() | 465 sq ft (1BHK+1T) | ₹ 23.25 L |
Report Error
Our Picks
- PriceConfigurationPossession
- Current Project
MCK Pratibhaby MC Kothari Promoters And DevelopersUltadanga, Kolkata₹ 23.25 L - ₹ 38.50 L1,2 BHK Apartment465 - 770 sq ftNov '19 - Recommended
Ramsnehi Unimark Towerby Unimark GroupKankurgachi, KolkataData Not Available4 BHK Apartment2,751 - 4,044 sq ftAug '21 - Recommended
Swarnamaniby Mani GroupKankurgachi, Kolkata₹ 4.68 Cr - ₹ 11.07 Cr4,5 BHK Apartment2,600 - 6,148 sq ftApr '20
MCK Pratibha Amenities
- 24 Hours Water Supply
- 24 X 7 Security
- Car Parking
- Lift Available
MCK Pratibha Specifications
Flooring
Balcony:
Vitrified Tiles
Kitchen:
Anti Skid Tiles
Living/Dining:
Vitrified Tiles
Master Bedroom:
Vitrified Tiles
Other Bedroom:
Vitrified Tiles
Toilets:
Anti Skid Tiles
Walls
Interior:
POP Finish
Toilets:
Ceramic Tiles Dado up to Lintel Level
Exterior:
Weather proof paint
Kitchen:
Ceramic Tiles Dado up to 2 Feet Height Above Platform
Gallery
MCK PratibhaElevation
MCK PratibhaFloor Plans
MCK PratibhaNeighbourhood
MCK PratibhaConstruction Updates
Contact NRI Helpdesk on
Whatsapp(Chat Only)
Whatsapp(Chat Only)
+91-96939-69347
Contact Helpdesk on
Whatsapp(Chat Only)
Whatsapp(Chat Only)
+91-96939-69347
About MC Kothari Promoters And Developers
MC Kothari Promoters And Developers
- 2
Total Projects - 0
Ongoing Projects - RERA ID
Similar Projects
- PT ASSIST
Ramsnehi Unimark Towerby Unimark GroupKankurgachi, KolkataPrice on request - PT ASSIST
Mani Swarnamaniby Mani GroupKankurgachi, Kolkata₹ 4.68 Cr - ₹ 11.07 Cr - PT ASSIST
Purti Merakiby Purti Realty GroupSamsara, Kolkata₹ 5.77 Cr - ₹ 9.18 Cr - PT ASSIST
Anantmaniby Mani GroupKankurgachi, Kolkata₹ 2.68 Cr - ₹ 6.24 Cr - PT ASSIST
Quintessaby PS GroupKankurgachi, Kolkata₹ 3.15 Cr - ₹ 10.43 Cr
Discuss about MCK Pratibha
comment
Disclaimer
PropTiger.com is not marketing this real estate project (“Project”) and is not acting on behalf of the developer of this Project. The Project has been displayed for information purposes only. The information displayed here is not provided by the developer and hence shall not be construed as an offer for sale or an advertisement for sale by PropTiger.com or by the developer.
The information and data published herein with respect to this Project are collected from publicly available sources. PropTiger.com does not validate or confirm the veracity of the information or guarantee its authenticity or the compliance of the Project with applicable law in particular the Real Estate (Regulation and Development) Act, 2016 (“Act”). Read Disclaimer
The information and data published herein with respect to this Project are collected from publicly available sources. PropTiger.com does not validate or confirm the veracity of the information or guarantee its authenticity or the compliance of the Project with applicable law in particular the Real Estate (Regulation and Development) Act, 2016 (“Act”). Read Disclaimer
























