

- Possession Start DateOct'15
- StatusCompleted
- Total Launched apartments12
- Launch DateJan'13
- AvailabilityResale
More about Bhandary Solitaire
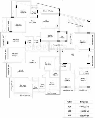
Bhandary Solitaire is a housing complex in Mangalore’s Kadri. The residential complex has 2 and 3BHK flats on offer that are under construction. There are a total of 12 units available in the complex, each measuring between 1120 and 1580 sq. ft. The flats are available via resale and through the builder. Amenities such as intercom services, car parking and gymnasium are offered within the premise of the complex. Bhandary Builders is one of the well-known property developers of Mangalore. T...View more
Project Specifications
- 2 BHK
- 3 BHK
- Gymnasium
- Intercom
- Car Parking
- 24 X 7 Security
- Power Backup
- 24X7 Water Supply
- Cctv
- Recreation Facilities
- Reticulated Gas Connection
- Covered Roof Top
- RCC Overhead Tank 15,000 Liters
- Interlock in Basement and Drive Way
- Design Compound Wall with Gate
- LT Transmitter with Panel Board
- Community Hall
- Lift Available
- Multipurpose Hall
Bhandary Solitaire Gallery
About Bhandary

- Years of experience24
- Total Projects9
- Ongoing Projects2

















