

- Possession Start DateNov'19
- StatusCompleted
- Total Area1 Acres
- Total Launched apartments23
- Launch DateSep'16
- AvailabilityResale
- RERA IDP51800008557
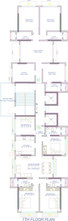
More about Dhoot Adi Residency Shree Adi House CHSL
Located in Chembur, Mumbai, Adi Residency is a premium housing project launched by Dhoot. The project offers Apartment in 3, 4 BHK configurations available from 907 sqft to 1280 sqft. These units in Mumbai Harbour, are available at an attractive price points starting at @Rs 22,857 per sqft and will be available to buyers at a starting price of Rs 2.90 crore. The project is Under Construction project and possession in Dec 18. Adi Residency has many amenities, such as Car Parking etc.
- 1 BHK
- 2 BHK
- 3 BHK
- 4 BHK
- Car Parking
Dhoot Adi Residency Shree Adi House CHSL Gallery
Payment Plans


About Dhoot Group

- Years of experience65
- Total Projects19
- Ongoing Projects2


























