
4 Photos
PROJECT RERA ID : P51700010705
651 sq ft 2 BHK 2T Apartment in Pacific Impressions Flora
₹ 1.33 Cr
See inclusions
Project Location
Dombivali, Mumbai
Basic Details
Amenities9
Property Specifications
- CompletedStatus
- Jun'22Possession Start Date
- 1 AcresTotal Area
- 44Total Launched apartments
- Dec'17Launch Date
- New and ResaleAvailability
.
Approved for Home loans from following banks
![HDFC (5244) HDFC (5244)]()
![Axis Bank Axis Bank]()
![PNB Housing PNB Housing]()
![Indiabulls Indiabulls]()
![Citibank Citibank]()
![DHFL DHFL]()
![L&T Housing (DSA_LOSOT) L&T Housing (DSA_LOSOT)]()
![IIFL IIFL]()
- + 3 more banksshow less
Price & Floorplan
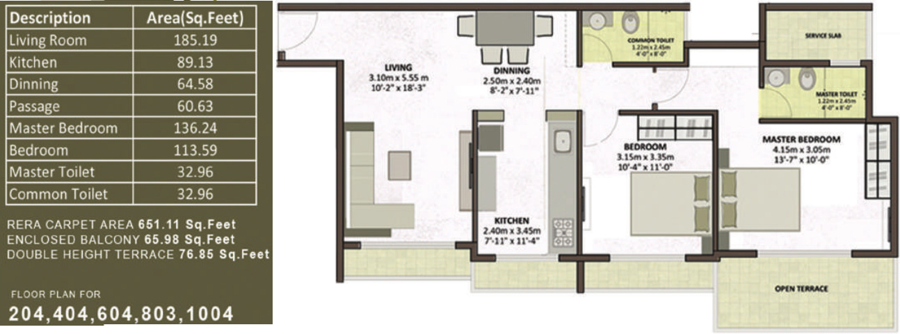
2BHK+2T (651.11 sq ft)
₹ 1.33 Cr
See Price Inclusions

2D
- 2 Bathrooms
- 2 Bedrooms
- 651 sqft
carpet area
property size here is carpet area. Built-up area is now available
Report Error
Gallery
Pacific FloraElevation
Pacific FloraFloor Plans
Pacific FloraNeighbourhood
Other properties in Pacific Impressions Flora
Contact NRI Helpdesk on
Whatsapp(Chat Only)
Whatsapp(Chat Only)
+91-96939-69347
Contact Helpdesk on
Whatsapp(Chat Only)
Whatsapp(Chat Only)
+91-96939-69347
About Pacific Impressions

- 5
Total Projects - 2
Ongoing Projects - RERA ID
Similar Properties
- PT ASSIST
Regency 2BHK+2Tby Regency GroupDombivali, Mumbai.Price on request - PT ASSIST
Ashapura 1BHK+1T (655 sq ft)by Ashapura ConstructionVillage Dawadi, Off.Kalyan Shill Rd, Dombivali (E), Kalyan, Thane, Mumbai.Price on request - PT ASSIST
Ashapura 1BHK+1T (640 sq ft)by Ashapura ConstructionDombivali, MumbaiPrice on request - PT ASSIST
Mrunal 1BHK+1T (690 sq ft)by Mrunal EnterprisesDombvali East MumbaiPrice on request - PT ASSIST
Miyas 1BHK+2T (610 sq ft)by Miyas GroupS.No.121, H no. 1(PT), Mouje davadi, Tal-Kalyan, Dist-Thane, Dombivili east MumbaiPrice on request
Discuss about Pacific Flora
comment
Disclaimer
PropTiger.com is not marketing this real estate project (“Project”) and is not acting on behalf of the developer of this Project. The Project has been displayed for information purposes only. The information displayed here is not provided by the developer and hence shall not be construed as an offer for sale or an advertisement for sale by PropTiger.com or by the developer.
The information and data published herein with respect to this Project are collected from publicly available sources. PropTiger.com does not validate or confirm the veracity of the information or guarantee its authenticity or the compliance of the Project with applicable law in particular the Real Estate (Regulation and Development) Act, 2016 (“Act”). Read Disclaimer
The information and data published herein with respect to this Project are collected from publicly available sources. PropTiger.com does not validate or confirm the veracity of the information or guarantee its authenticity or the compliance of the Project with applicable law in particular the Real Estate (Regulation and Development) Act, 2016 (“Act”). Read Disclaimer




























