
11 Photos
PROJECT RERA ID : P51800052244
949 sq ft 3 BHK 3T Apartment in Shraddha Landmark Paradise
₹ 2.56 Cr
See inclusions
Project Location
Borivali West, Mumbai
Basic Details
Amenities36
Specifications
Property Specifications
- Under ConstructionStatus
- Nov'28Possession Start Date
- 2 AcresTotal Area
- Aug'23Launch Date
- NewAvailability
Payment Plans

Price & Floorplan
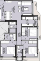
3BHK+3T (949 sq ft)
₹ 2.56 Cr
See Price Inclusions

2D |
- 3 Bathrooms
- 3 Bedrooms
- 949 sqft
carpet area
property size here is carpet area. Built-up area is now available
Report Error
Gallery
Shraddha ParadiseElevation
Shraddha ParadiseVideos
Shraddha ParadiseAmenities
Shraddha ParadiseFloor Plans
Shraddha ParadiseNeighbourhood
Other properties in Shraddha Landmark Paradise
- 2 BHK
- 3 BHK
Contact NRI Helpdesk on
Whatsapp(Chat Only)
Whatsapp(Chat Only)
+91-96939-69347
Contact Helpdesk on
Whatsapp(Chat Only)
Whatsapp(Chat Only)
+91-96939-69347
About Shraddha Landmark

- 18
Years of Experience - 26
Total Projects - 11
Ongoing Projects - RERA ID
Founded in 2007, Shraddha Landmark is a prestigious real estate entity that has made a mark with its professional approach and commitment for quality construction. Under the visionary leadership of its Managing Director Sudhir Mehta and other qualified professionals in the management team, Shraddha Landmark aims to deliver superior value to all its stakeholders and create luxurious homes. The portfolio of property by Shraddha Landmark includes multiple residential projects in and around Mumbai. ... read more
Similar Properties
- PT ASSIST
Neelyog 2BHK+2T (712 sq ft)by Neelyog Builders and DevelopersPlot No. 482 To 485 At Borivali₹ 1.97 Cr - PT ASSIST
Neelyog 1BHK+1T (586 sq ft) + Study Roomby Neelyog Builders and DevelopersPlot No. 482 To 485 At Borivali₹ 1.62 Cr - PT ASSIST
Shapoorji Pallonji 2 BHK (1020 sq ft)by Shapoorji Pallonji Real EstateSamata Nagar, Kandivali East₹ 2.59 Cr - PT ASSIST
Shlok 1BHK+1T (416.24 sq ft)by Shlok Enterprises Manhar9 - 10, Borivali, Mumbai Suburban, Konkan₹ 1.04 Cr - PT ASSIST
Aditya 2BHK+2T (711 sq ft)by Aditya Developers MumbaiF.P. No. 94, T.P.S. III, Shimpoli Road, Silver Park, Borivali (West)Price on request
Discuss about Shraddha Paradise
comment
Disclaimer
PropTiger.com is not marketing this real estate project (“Project”) and is not acting on behalf of the developer of this Project. The Project has been displayed for information purposes only. The information displayed here is not provided by the developer and hence shall not be construed as an offer for sale or an advertisement for sale by PropTiger.com or by the developer.
The information and data published herein with respect to this Project are collected from publicly available sources. PropTiger.com does not validate or confirm the veracity of the information or guarantee its authenticity or the compliance of the Project with applicable law in particular the Real Estate (Regulation and Development) Act, 2016 (“Act”). Read Disclaimer
The information and data published herein with respect to this Project are collected from publicly available sources. PropTiger.com does not validate or confirm the veracity of the information or guarantee its authenticity or the compliance of the Project with applicable law in particular the Real Estate (Regulation and Development) Act, 2016 (“Act”). Read Disclaimer
















