

- Possession Start DateJan'15
- StatusCompleted
- Total Launched villas62
- Launch DateOct'12
- AvailabilityResale
- RERA IDUPRERAPRJ5048
More about Jaypee Villa Expanza Green Crest Homes
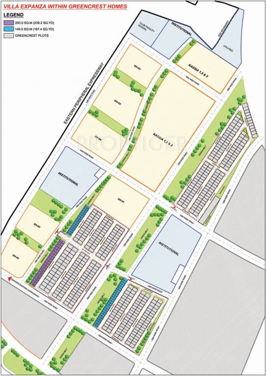
Developed by Jaypee Greens, Villa Expanza is the most awaited project by the builder. Located in close proximity to Yamuna Expressway, Noida this unique expandable villas are designed to grow in accordance with customer’s life need. 75% of offered area of each villa can be constructed as per buyer’s wish and is expandable upto 2 floors, while 25% is already constructed. Location Advantages: Project is located in close proximity to Yamuna Expressway and Eastern Express...View more
Project Specifications
- 4 BHK
- 6 BHK
- Club House
- Sports Facility
- 24-hour security
Jaypee Villa Expanza Green Crest Homes Gallery
Payment Plans

About Jaypee Greens

- Years of experience27
- Total Projects85
- Ongoing Projects8



























