
16 Photos
Venkateshwara Aadi
Price on request
Builder Price
3 BHK
Apartment
933 - 988 sq ft
Carpet Area
Project Location
Deccan Gymkhana, Pune
Overview
- Jan'16Possession Start Date
- CompletedStatus
- 10Total Launched apartments
- Sep'13Launch Date
- ResaleAvailability
More about Venkateshwara Aadi
Venkateshwara Realty Aadi is a housing community in Deccan Gymkhana, Pune. It offers under construction apartments that can be purchased through resale or from the developer. These flats are of different built-up area and configurations. The premise includes amenities for home owners such as power back up and lift. Venkateshwara Realty is a renowned property developer with numerous projects to their credit. They are known for their timely delivery and transparent dealings. Deccan Gymkhana is loc...read more
Approved for Home loans from following banks
![HDFC (5244) HDFC (5244)]()
![Axis Bank Axis Bank]()
![PNB Housing PNB Housing]()
![Indiabulls Indiabulls]()
![Citibank Citibank]()
![DHFL DHFL]()
![L&T Housing (DSA_LOSOT) L&T Housing (DSA_LOSOT)]()
![IIFL IIFL]()
- + 3 more banksshow less
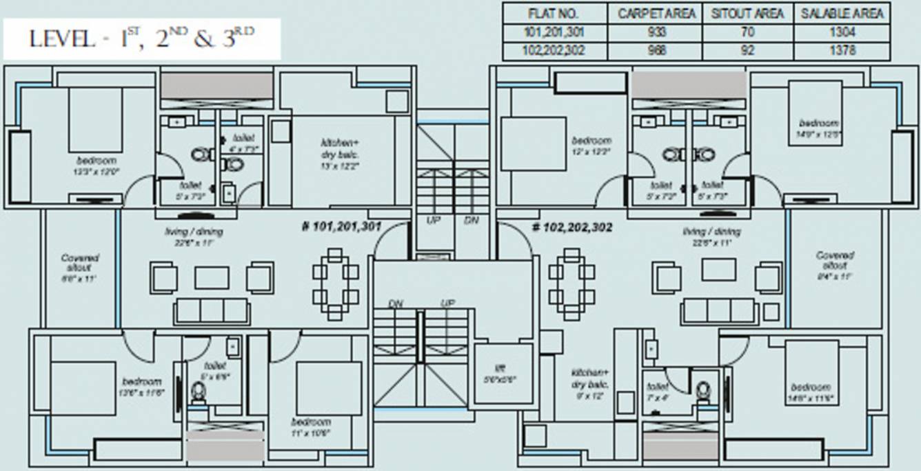
Venkateshwara Aadi Floor Plans
- 3 BHK
Report Error
Our Picks
- PriceConfigurationPossession
- Current Project
Venkateshwara Aadiby Venkateshwara RealtyDeccan Gymkhana, PuneData Not Available3 BHK Apartment933 - 988 sq ftJan '16 - Recommended
Avionby Mont Vert HomesPashan, PuneData Not Available2,3,4 BHK Apartment695 - 1,790 sq ftJun '18 - Recommended
Ganga Legend B2by Goel Ganga GroupBavdhan, Pune₹ 66.02 L - ₹ 92.65 L2 BHK Apartment551 - 773 sq ftNov '24
Venkateshwara Aadi Amenities
- Power Backup
- Lift Available
- Cctv
- Party Lighting For Terrace
- 24X7 Water Supply
- Video Door Security
- Entrance Lobby
Venkateshwara Aadi Specifications
Doors
Internal:
Laminated Flush Door
Main:
Decorative Main Door
Flooring
Kitchen:
Vitrified Tiles
Living/Dining:
Vitrified Tiles
Other Bedroom:
Vitrified Tiles
Master Bedroom:
Laminated Wooden Flooring
Gallery
Venkateshwara AadiElevation
Venkateshwara AadiFloor Plans
Venkateshwara AadiNeighbourhood
Venkateshwara AadiOthers
Contact NRI Helpdesk on
Whatsapp(Chat Only)
Whatsapp(Chat Only)
+91-96939-69347
Contact Helpdesk on
Whatsapp(Chat Only)
Whatsapp(Chat Only)
+91-96939-69347
About Venkateshwara Realty

- 32
Years of Experience - 6
Total Projects - 0
Ongoing Projects - RERA ID
Similar Projects
- PT ASSIST
Mont Vert Avionby Mont Vert HomesPashan, PunePrice on request - PT ASSIST
Goel Ganga Legend B2by Goel Ganga GroupBavdhan, Pune₹ 66.02 L - ₹ 92.65 L - PT ASSIST
Goel Ganga Legend A4 And B1by Goel Ganga GroupBavdhan, PunePrice on request - PT ASSIST
Ratanrajby Ratan Homes PunePashan, Pune₹ 94.37 L - ₹ 1.27 Cr - PT ASSIST
Goel Ganga Legend Building A1by Goel Ganga GroupBavdhan, PunePrice on request
Discuss about Venkateshwara Aadi
comment
Disclaimer
PropTiger.com is not marketing this real estate project (“Project”) and is not acting on behalf of the developer of this Project. The Project has been displayed for information purposes only. The information displayed here is not provided by the developer and hence shall not be construed as an offer for sale or an advertisement for sale by PropTiger.com or by the developer.
The information and data published herein with respect to this Project are collected from publicly available sources. PropTiger.com does not validate or confirm the veracity of the information or guarantee its authenticity or the compliance of the Project with applicable law in particular the Real Estate (Regulation and Development) Act, 2016 (“Act”). Read Disclaimer
The information and data published herein with respect to this Project are collected from publicly available sources. PropTiger.com does not validate or confirm the veracity of the information or guarantee its authenticity or the compliance of the Project with applicable law in particular the Real Estate (Regulation and Development) Act, 2016 (“Act”). Read Disclaimer







































