

₹ 48.05 L - ₹ 59.09 L
Builder Price
Home Loan EMI starts at ₹ 37,250See inclusions
Configuration
2, 3 BHK
Builtup area
569 - 700 sq ft
Possession Status
Completed
Avg. Price
₹ 8,441 sq.ft
Overview
- Possession Start DateAug'23
- StatusCompleted
- Total Area8 Acres
- Total Launched apartments1190
- Launch DateJan'19
- AvailabilityNew and Resale
- RERA IDP52100019639
Salient Features
- A forest boardwalk is available within the vicinity.
- The project features a sun deck, card room, multipurpose hall, cafeteria, spa, amphitheater, party lawn, and business center.
- Recreational amenities include a children's play area, basketball court, cricket pitch, swimming pool, gymnasium, and jogging track.
- St. George Balikagram English School is 2.8 km away.
- Jivanrekha Multispecialty Hospital is located 3 km away.
- The Maharashtra Cricket Association Stadium is just 1.1 km away.
More about Godrej Park Greens
Godrej Properties presents Godrej Park Greens, Pune with 2 and 3 BHK homes. Located in Mamurdi , welcome to homes with 6 acres of central greens. At Godrej Park Greens, experience life on the greener side with homes nestled in nature, surrounded by 1100 trees and 100 fruit bearing trees in the orchard.
Imagine a home in the city, with an ambience of natural bliss. A home that breathes a new life into every day of the year. Your home, #YourGreenEscape
Approved for Home loans from following banks
Project Specifications
Flooring
Balcony:
Anti Skid Tiles
Toilets:
Anti Skid Tiles
Master Bedroom:
Laminated Wooden
Other Bedroom:
a Living, Dining and Bedrooms - Vitrified tiles
Living/Dining:
Anti Skid Vitrified Tiles
Kitchen:
Anti skid ceramic flooring.
Walls
Interior:
Plaster & OBD
Exterior:
Standard Paints
Kitchen:
Glazed Tiles Dado
Toilets:
Glazed Tiles Dado
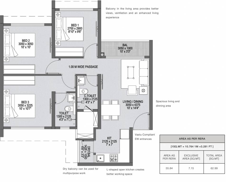
Godrej Park Greens Floor Plans
- 2 BHK
- 3 BHK
₹ 48.05 L
₹ 57.23 L
Godrej Park Greens Amenities
- Gymnasium
- Swimming Pool
- Children's play area
- Club House
- Intercom
- Full Power Backup
- Lift Available
- Community Hall
- Gated Community
- 24 X 7 Security
- Jogging Track
- Car Parking
- Vaastu Compliant
- 24 Hours Water Supply
- Rain Water Harvesting
- Fire Fighting System
- Sewage Treatment Plant
- Landscaped Gardens
- Spa
- Basketball Court
- Cricket Pitch
- Multipurpose Room
- Amphitheater
- Cafeteria
- Shopping Mall
- Business Center
- Toddler Pool
- Internal Street Lights
- Landscape Garden and Tree Planting
- Street Lighting
- Garbage Disposal
- Cycling & Jogging Track
- Reserved Parking
- Visitor Parking
- Billiards/Snooker Table
- Party Lawn
- Security Cabin
- Sun Deck
- Senior Citizen Siteout
- Solar Water Heating
- Table Tennis
- Card Room
- Carrom
- Jacuzzi
- Multipurpose Hall
- Foosball
- Fire Sprinklers
Godrej Park Greens - Brochure
Godrej Park Greens Gallery
Home Loan Calculator
Select a unit
Loan Amount
₹
Loan Tenure (in years)
Y
Interest Rate (% P. A.)
%
0
EMI per month
Principal Amount0
Interest Amount0
Total amount payable0
Payment Plans

About Godrej Properties

- Years of experience37
- Total Projects277
- Ongoing Projects167
An Overview:Godrej Properties is reputed PAN India real estate company that carries the Godrej Group philosophy of innovation, sustainability and excellence. All the properties constructed by the group carry a 119year legacy of excellence and trust. The company is currently developing projects spread across 11.89 million square meters in around 12 cities. The companies vision statement is, we aspire to be the nation\'s top real estate company, while continuing to be the most trusted name in the ...
View moreMore projects by Godrej Properties
Similar Projects















































