
Kumar Surabhi
Price on request
Builder Price
2, 3 BHK
Apartment
996 - 1,423 sq ft
Builtup area
Project Location
Parvati Darshan, Pune
Overview
- Sep'14Possession Start Date
- CompletedStatus
- 51Total Launched apartments
- Oct'10Launch Date
- ResaleAvailability
More about Kumar Surabhi
Kumar Surabhi is a housing community located in Parvati Darshan, Pune. Fully constructed, it offers 51 units of 2 and 3 BHK apartments, covering an area of 996 to 1423 sq. ft. Available from builder and through resale, each unit are priced at 78.2 to 92.2 lakh. Various amenities like intercom facilities are offered. Kumar Properties was established in 1996. Parvati Darshan is situated in south Pune, Maharashtra. It has a distance of 6.5 and 50.8 kilometers from Pune Railway Station and New Pune ...read more
Approved for Home loans from following banks
![HDFC (5244) HDFC (5244)]()
![Axis Bank Axis Bank]()
![PNB Housing PNB Housing]()
![Indiabulls Indiabulls]()
![Citibank Citibank]()
![DHFL DHFL]()
![L&T Housing (DSA_LOSOT) L&T Housing (DSA_LOSOT)]()
![IIFL IIFL]()
- + 3 more banksshow less
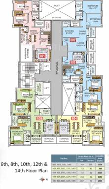
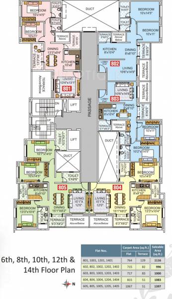
Kumar Surabhi Floor Plans
- 2 BHK
- 3 BHK
| Floor Plan | Area | Builder Price |
|---|---|---|
![]() | 996 sq ft (2BHK+2T) | - |
![]() | 1000 sq ft (2BHK+2T) | - |
![]() | 1116 sq ft (2BHK+2T) | - |
![]() | 1175 sq ft (2BHK+2T) | - |
1 more size(s)less size(s)
Report Error
Our Picks
- PriceConfigurationPossession
- Current Project
Kumar Surabhiby Kumar PropertiesParvati Darshan, PuneData Not Available2,3 BHK Apartment996 - 1,423 sq ftSep '14 - Recommended
Reinaby Kohinoor Group PuneKondhwa, PuneData Not Available2 BHK Apartment646 sq ftFeb '23 - Recommended
Bella Vitaby Lodha GroupNIBM Annex Mohammadwadi, Pune₹ 1.02 Cr - ₹ 2.97 Cr2,3,4,5 BHK Apartment793 - 2,300 sq ftNov '25
Kumar Surabhi Amenities
- Intercom
- Jogging Track
- Others
- Power Backup
- Lift Available
- Rain Water Harvesting
- 24 X 7 Security
- Vaastu Compliant
Kumar Surabhi Specifications
Flooring
Balcony:
Anti Skid Tiles
Kitchen:
Vitrified Tiles
Living/Dining:
Vitrified Tiles
Master Bedroom:
Vitrified Tiles
Other Bedroom:
Vitrified Tiles
Toilets:
Anti Skid Tiles
Others
Windows:
Aluminium Sliding
Gallery
Kumar SurabhiElevation
Kumar SurabhiFloor Plans
Kumar SurabhiNeighbourhood
Contact NRI Helpdesk on
Whatsapp(Chat Only)
Whatsapp(Chat Only)
+91-96939-69347
Contact Helpdesk on
Whatsapp(Chat Only)
Whatsapp(Chat Only)
+91-96939-69347
About Kumar Properties

- 60
Years of Experience - 132
Total Projects - 54
Ongoing Projects - RERA ID
Kumar Properties, established in August 1966 started its journey in the real estate sector with initially catering to the rental segment. Mr. K.H. Oswal is the founder of company. Starting from 70’s to 90’s, the firm pioneered with introducing construction of branded apartments, bungalow projects, high-rise buildings, luxurious and mega complexes. The company has diversified from developing townships to commercial buildings and IT Parks. With corporate office in Pu... read more
Similar Projects
- PT ASSIST
Kohinoor Reinaby Kohinoor Group PuneKondhwa, PunePrice on request - PT ASSIST
Lodha Bella Vitaby Lodha GroupNIBM Annex Mohammadwadi, Pune₹ 1.02 Cr - ₹ 2.97 Cr - PT ASSIST
Kohinoor Presidentiaby Kohinoor Group PuneSopan Baug, Pune₹ 93.99 L - ₹ 1.31 Cr - PT ASSIST
Starlitby Opulent DevelopersSopan Baug, Pune₹ 3.33 Cr - ₹ 4.26 Cr - PT ASSIST
Eternia Phase IIby Kundan Spaces LLPHadapsar, Pune₹ 56.78 L - ₹ 1.29 Cr
Discuss about Kumar Surabhi
comment
Disclaimer
PropTiger.com is not marketing this real estate project (“Project”) and is not acting on behalf of the developer of this Project. The Project has been displayed for information purposes only. The information displayed here is not provided by the developer and hence shall not be construed as an offer for sale or an advertisement for sale by PropTiger.com or by the developer.
The information and data published herein with respect to this Project are collected from publicly available sources. PropTiger.com does not validate or confirm the veracity of the information or guarantee its authenticity or the compliance of the Project with applicable law in particular the Real Estate (Regulation and Development) Act, 2016 (“Act”). Read Disclaimer
The information and data published herein with respect to this Project are collected from publicly available sources. PropTiger.com does not validate or confirm the veracity of the information or guarantee its authenticity or the compliance of the Project with applicable law in particular the Real Estate (Regulation and Development) Act, 2016 (“Act”). Read Disclaimer





































