

- Possession Start DateNov'18
- StatusCompleted
- Total Area0.3 Acres
- Total Launched apartments36
- Launch DateAug'14
- AvailabilityResale
- RERA IDP52100007218
Salient Features
- 3 open side properties
- Lake view
- 100% vaastu complaint in apartment
More about Pate Courtyard
Yogesh And Yogesh Developers Courtyard construction Group has built up a residential project which is based at Pashan region of Pune. The project offers great apartments with all contemporary fittings and modesty as well as comfort. All the daily needs like bus station, hospital, bank, commercial complex, atm, office headquarters, hospital, park, play school, petrol pump, train station, restaurants etc all are present in the neighbourhood. The different amenities of the project 24 hours security...View more
![HDFC (5244) HDFC (5244)]()
![Axis Bank Axis Bank]()
![PNB Housing PNB Housing]()
![Indiabulls Indiabulls]()
![Citibank Citibank]()
![DHFL DHFL]()
![L&T Housing (DSA_LOSOT) L&T Housing (DSA_LOSOT)]()
![IIFL IIFL]()
- + 3 more banksshow less
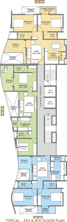
Project Specifications
- 2 BHK
- Rain Water Harvesting
- Power Backup
- Car Parking
- Jogging Track
- Lift Available
- Fire Fighting System
- Sewage Treatment Plant
- 24X7 Water Supply
- Closed Car Parking
- Landscape Garden and Tree Planting
- Paved Compound
- Solar Water Heating
- Entrance Lobby
- Video Door Security
- Electrical Meter Room, Sub-Station, Receiving Station
- Energy management
- Open Parking
- Solid Waste Management And Disposal
- Storm Water Drains
- Water Conservation, Rain water Harvesting
Pate Courtyard Gallery
Payment Plans

About Pate Developers

- Years of experience44
- Total Projects50
- Ongoing Projects8





































