India's best property portal to buy property in India - Proptiger.com
Possession : Nov'22
Rera
Calyx Artemis Phase II
Price on request
Builder Price
Configuration
2 BHK
Carpet Area1 sq M = 10.76 sq ft
708 - 730 sq ft
Possession Status
Completed
Overview
  • Possession Start Date
    Nov'22
  • Status
    Completed
  • Total Area
    1 Acres
  • Total Launched apartments
    86
  • Launch Date
    Jun'18
  • Availability
    Resale
  • RERA ID
    P52100014762

Salient Features

  • Located 3.8 km away from Sinhgad Spring Dale Public School
  • 4 minutes drive to Hotel Brahma Garden for fine dining
  • Just 2 minutes walk to Krushna Mandir Suncity bus stop
  • Wadekar ENT & Maternity Hospital is located 1.4 km away
  • At a distance of 1.8 km to Santosh Mall
  • Experience daily fitness with our on-site jogging and cycling tracks.
Approved for Home loans from following banks
  • HDFC (5244)
  • Axis Bank
  • PNB Housing
  • Indiabulls
  • Citibank
  • DHFL
  • L&T Housing (DSA_LOSOT)
  • IIFL
  • + 3 more banksshow less

Project Specifications

Flooring
Toilets:
Anti Skid Tiles
Master Bedroom:
Vitrified Flooring
Living/Dining:
Vitrified Tiles
Other Bedroom:
Vitrified Flooring Tiles
Walls
Interior:
Acrylic Paint
Others
Windows:
Powder Coated Aluminium Sliding
Frame Structure:
RCC framed structure
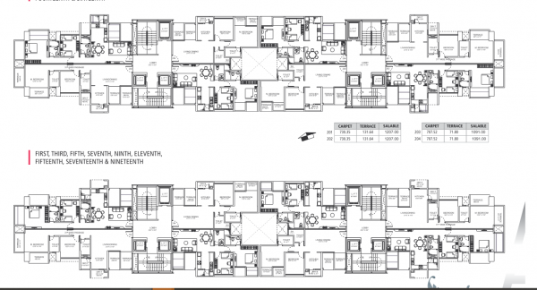
Calyx Artemis Phase II Floor Plans
  • 2 BHK
-
Calyx Artemis Phase II Amenities

About Calyx Constructions

Calyx Constructions
  • Total Projects34
  • Ongoing Projects5
The logo is a beautiful blend of typeface of the name CALYX set in grey,( which represents corporate outlook and understated calmness) and graphical symbol of flower. The name CALYX is a metaphorical representation of the outermost whorl of the flower which preserves the beauty of the flowers by holding the petals together and being connected to the stem which, ultimately, touches the earth that expresses a quality of being down to earth in-spite of being a symbol of beauty and love. The symboli...
View more

More projects by Calyx Constructions

Similar Projects

Developer Network

  • 400+
    Reputed Developers