

Price on request
Builder Price
Configuration
2, 3 BHK
Builtup area
503 - 780 sq ft
Possession Status
Launch
Overview
- Possession Start DateApr'22
- StatusLaunch
- Total Area0.03 Acres
- Total Launched apartments10
- AvailabilityNew
- RERA IDPR/GJ/RAJKOT/RAJKOT/Others/RAA04430/201218
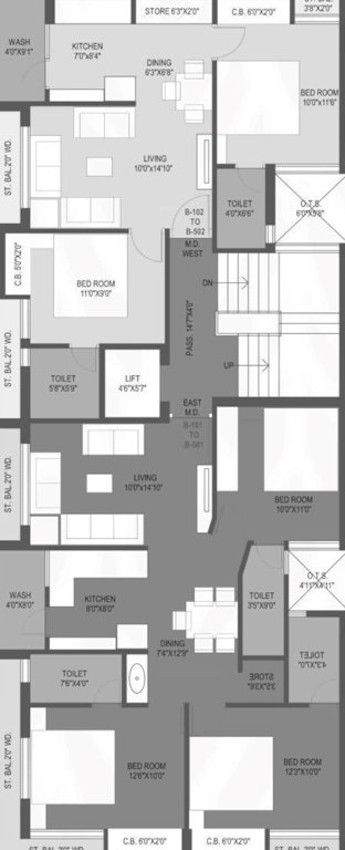
K K V Aatman 2 Wing b Floor Plans
- 2 BHK
- 3 BHK
-
-
K K V Aatman 2 Wing b Amenities
- Fire Fighting System
- 24X7 Water Supply
- Storm Water Drains
- Street Lighting
- Electrification(Transformer, Solar Energy etc)
K K V Aatman 2 Wing b Gallery
About K K V Enterprise
- Total Projects2
- Ongoing Projects2








