

Price on request
Builder Price
Configuration
3 BHK
Carpet Area
1,167 - 1,704 sq ft
Possession Status
Launch
Overview
- Possession Start DateDec'26
- StatusLaunch
- Total Area0.154705266 Acres
- Total Launched apartments13
- Launch DateAug'23
- AvailabilityNew
- RERA IDPR/GJ/RAJKOT/RAJKOT/Others/RAA12782/170124/311226
Project Specifications
Walls
Exterior:
Sand Faced Plaster
Interior:
Acrylic Emulsion Paint with Putty
Fittings
Toilets:
Branded CP Fittings and Sanitary Ware
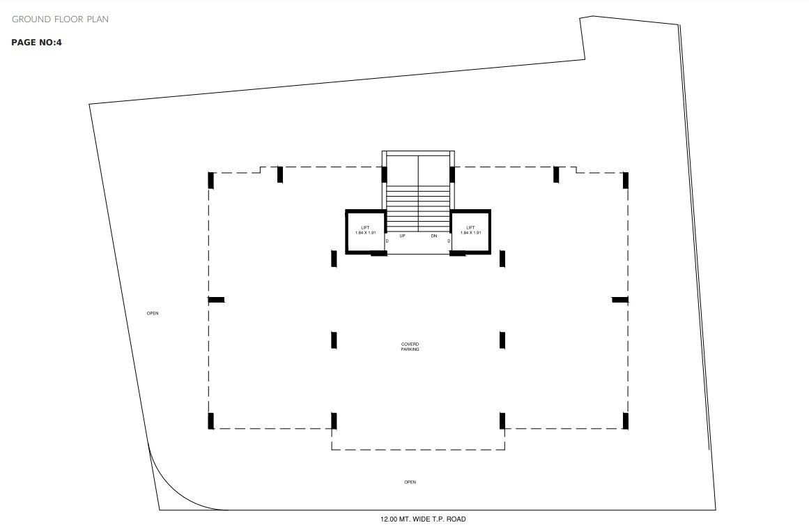
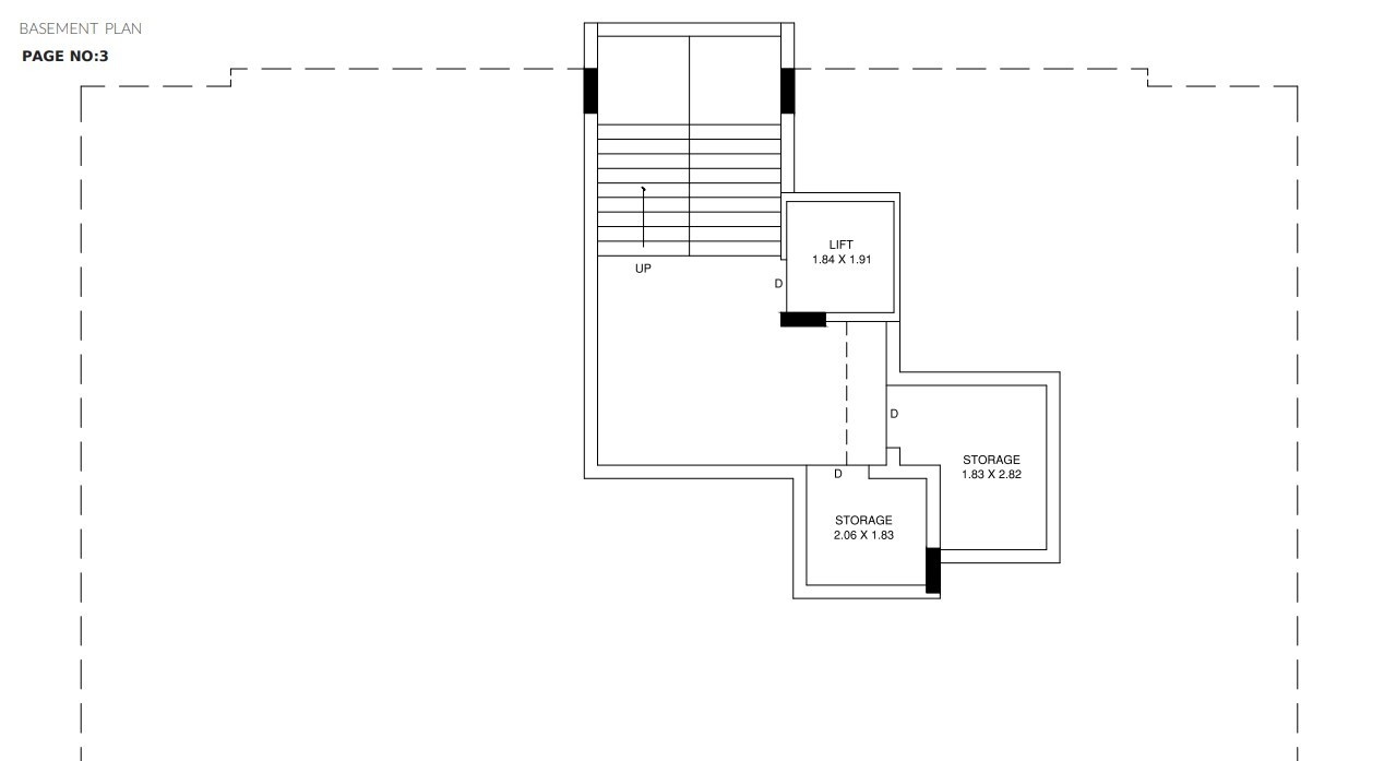
Hariva Gold Floor Plans
- 3 BHK
-
Hariva Gold Amenities
- 24X7 Water Supply
- 24 X 7 Security
- Fire Fighting System
- Lift(s)
- Solid Waste Management And Disposal
- Water Conservation, Rain water Harvesting
Hariva Gold Gallery
About Hariva Buildcon
- Total Projects1
- Ongoing Projects1























