


Price on request
Builder Price
Configuration
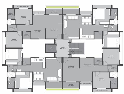
2 BHK
Carpet Area
593 sq ft
Possession Status
Launch
Overview
- Possession Start DateDec'24
- StatusLaunch
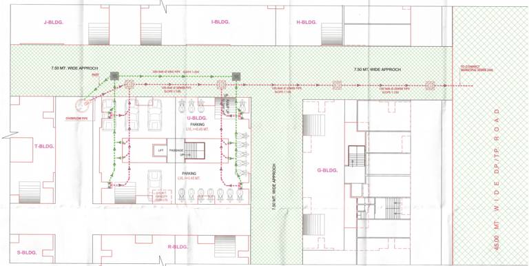
- Total Area3.69 Acres
- Launch DateApr'19
- AvailabilityNew
- RERA IDPR/GJ/SURAT/SURAT CITY/SUDA/RAA10158/060522
Project Specifications
Doors
Main:
Decorative Main Door
Internal:
Flush Door
Flooring
Kitchen:
Vitrified Tiles
Living/Dining:
Vitrified Tiles
Other Bedroom:
Vitrified Flooring
Master Bedroom:
Vitrified Flooring
Akshar Uma Park Mangalam Park Bldg U Floor Plans
- 2 BHK
-
Akshar Uma Park Mangalam Park Bldg U Amenities
- Children's play area
- Car Parking
- Closed Car Parking
- 24X7 Water Supply
- 24 X 7 Security
- CCTV
- Full Power Backup
- Lift(s)
Akshar Uma Park Mangalam Park Bldg U Gallery
About Akshar Developers Surat
- Total Projects1
- Ongoing Projects1








