

₹ 63.09 L - ₹ 90.74 L
Builder Price
Home Loan EMI starts at ₹ 48,916See inclusions
Configuration
2, 3 BHK
Carpet Area
661 - 951 sq ft
Possession Status
Launch
Avg. Price
₹ 9,545 sq.ft
Overview
- Possession Start DateDec'28
- StatusLaunch
- Total Area1.3 Acres
- Total Launched apartments56
- Launch DateMar'23
- AvailabilityNew
- RERA IDPR/GJ/SURAT/SURAT CITY/SUDA/RAA11533/290323
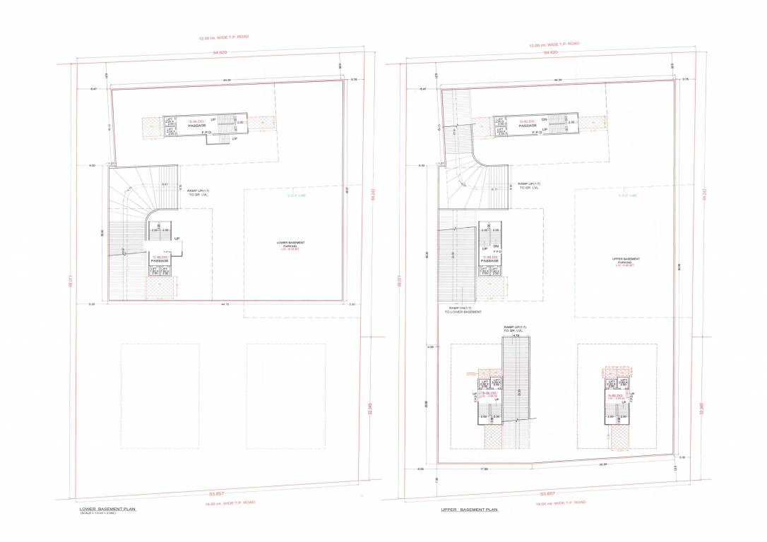
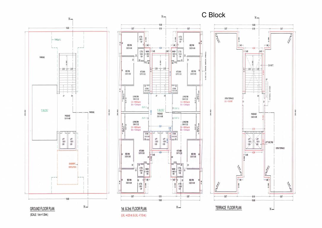
Maxiple The Address Block C And D Floor Plans
- 2 BHK
- 3 BHK
₹ 63.09 L
₹ 90.74 L
Maxiple The Address Block C And D Amenities
- Club House
- Children's play area
- Car Parking
- 24X7 Water Supply
- Rain Water Harvesting
- Gated Community
- 24 X 7 Security
- CCTV
- Full Power Backup
- Internal Roads
- Vaastu Compliant
- Lift(s)
- Service Lift
- Sewage Treatment Plant
- RO Water System
- Street Lighting
Maxiple The Address Block C And D Gallery
About Maxiple Infra
- Total Projects2
- Ongoing Projects2















