

- Possession Start DateDec'15
- StatusCompleted
- Total Area1 Acres
- Total Launched apartments120
- Launch DateDec'12
- AvailabilityResale
Salient Features
- Artech Futura offers you a super luxury ambiance.
- The amenities offered include Infinity Swimming pool with deck.
More about Artech Futura
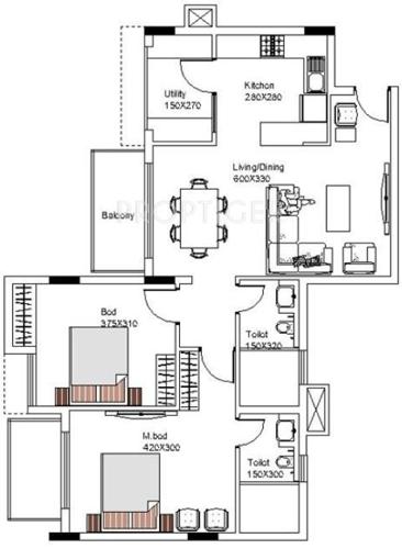
Artech Realtor Futura is a residential development located at Anayara, Trivandrum. The project containing a total of 120 apartments is presently under construction. The 2-3 BHK apartments offered by the project measuring in sizes between 1,150 and 1,650 sq ft are available to the buyers solely via resale of property. The project comes with a gymnasium, swimming pool, play area for kids, jogging track, indoor games facilities, multipurpose room, well pruned gardens, video door phone system and po...View more
Project Specifications
- 2 BHK
- 3 BHK
- Gymnasium
- Swimming Pool
- Children's play area
- Multipurpose Room
- 24 X 7 Security
- Jogging Track
- Power Backup
- Indoor Games
- 24X7 Water Supply
- Car Parking
- 24 Hours Water Supply
- Rain Water Harvesting
- Fire Fighting System
- Lift Available
- Sewage Treatment Plant
- Landscaped Gardens
- Landscape Garden and Tree Planting
- Entrance Lobby
- Solid Waste Management And Disposal
- Visitor Parking
- Piped Gas Connection
- Waiting Lounge
- Video Door Security
- Garbage Disposal
- Multipurpose Hall
Artech Futura Gallery
About Artech Realtors

- Years of experience13
- Total Projects41
- Ongoing Projects5
























