

- Possession Start DateNov'16
- StatusCompleted
- Total Launched apartments150
- Launch DateMay'13
- AvailabilityResale
More about Artech Varsha
The apartment of Artech Realtors Varsha is under construction these days and must be launched soon. The interior and exterior of the project is remarkable and designed with high skilled. The doors are made up of best in class teak wood. The entire flooring of the apartment is done with ceramic and vitrified tiles which add more beauty to the apartments. The walls are painted with weather proof paint which signifies the durability of the polishing of the walls. The project is prepared keeping in ...View more
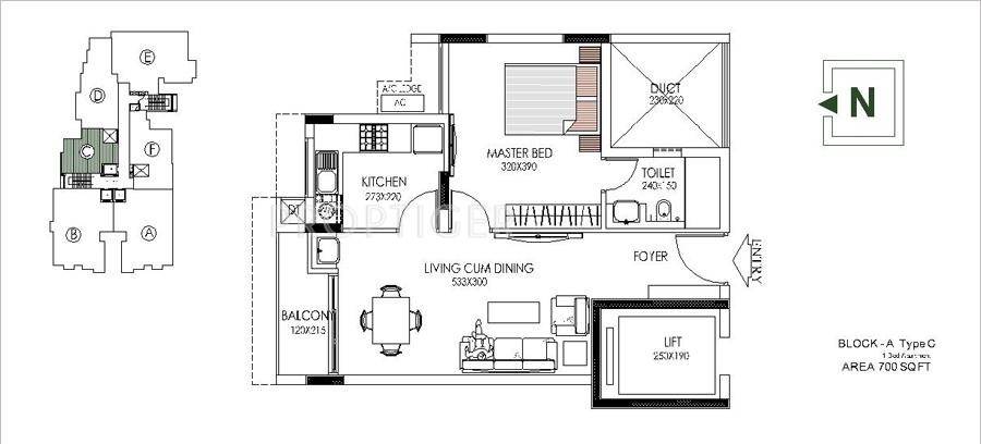
Project Specifications
- 1 BHK
- 2 BHK
- 3 BHK
- Gymnasium
- Swimming Pool
- Children's play area
- Multipurpose Room
- Sports Facility
- Video door phone system
- Jogging Track
- Power Backup
- Indoor Games
- Club House
- Car Parking
- Party Hall
- Fire Fighting System
- Lift Available
- Landscaped Gardens
- Landscape Garden and Tree Planting
- Visitor Parking
- Solid Waste Management And Disposal
- Piped Gas Connection
- Rest House for Drivers
- Fountains
- Waiting Lounge
- Party Lawn
- Terrace Garden
- Video Door Security
- Entrance Lobby
- Garbage Disposal
- Multipurpose Hall
Artech Varsha Gallery
About Artech Realtors

- Years of experience13
- Total Projects41
- Ongoing Projects5
































