


Price on request
Builder Price
Configuration
2, 3 BHK
Carpet Area
622 - 784 sq ft
Possession Status
Under Construction
Overview
- Possession Start DateDec'29
- StatusUnder Construction
- Total Area5.96 Acres
- Total Launched apartments132
- Launch DateNov'13
- AvailabilityNew
- RERA IDPR/GJ/VADODARA/VADODARA/Vadodara Municipal Corporation/RAA14640/040125/311229
More about Pratham Riviera Phase 6
Pratham Riviera Phase 6 is a premium housing project launched by Pratham Developers Vadodara in Atladara, Vadodara. These 2, 3 BHK Apartment in Vadodara South are available from 0 sqft. Among the many luxurious amenities that the project hosts are Fire Fighting System, 24 X 7 Security, Lift(s), Community Hall, Landscape Garden and Tree Planting etc.
Project Specifications
Flooring
Balcony:
Vitrified Tiles
Living/Dining:
Vitrified Tiles
Other Bedroom:
- Vitrified tiles in common bedroom, children bedroom and kitchen
Master Bedroom:
- Master bedroom wooden flooring / other bedrooms vitrified tiles
Doors
Main:
Burma Teak Frame and Shutters
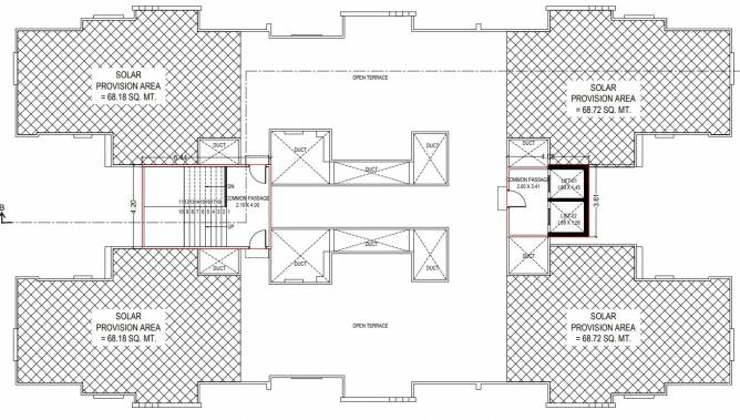
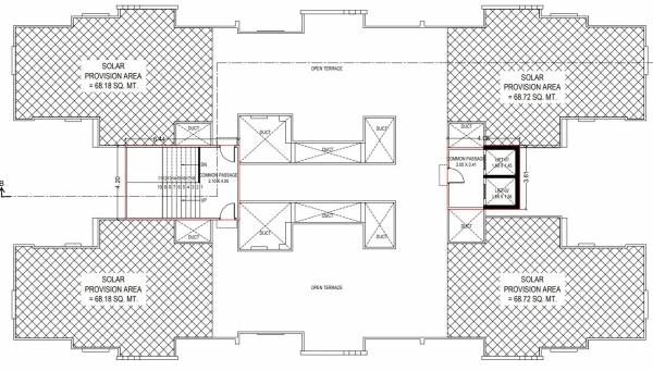
Pratham Riviera Phase 6 Floor Plans
- 2 BHK
- 3 BHK
-
-
Pratham Riviera Phase 6 Amenities
- Swimming Pool
- Community Hall
- 24X7 Water Supply
- 24 X 7 Security
- 24x7 CCTV Surveillance
- Fire Fighting System
- Lift(s)
- RO Water System
- Landscape Garden and Tree Planting
- Solid Waste Management And Disposal
- Water Conservation, Rain water Harvesting
Pratham Riviera Phase 6 Gallery
About Pratham Developers Vadodara
- Total Projects6
- Ongoing Projects5
Pratham Enterprises is one of the first organized developer groups in the state of Gujarat, having successfully developed more than 2 million square feet of space. The company is a firm believer in high level of integrity and transparence business practices. Pratham builders are served some of the most astute minds of real estate business, all having years of experience. A team of engineers, architects, designers and marketing professionals work round the clock to ensure superior customer satisf...
View more









