

₹ 1.65 Cr
Builder Price
Home Loan EMI starts at ₹ 1.28 LSee inclusions
Configuration
5 BHK
Builtup area
2,500 sq ft
Possession Status
Under Construction
Avg. Price
₹ 6,582 sq.ft
Overview
- Possession Start DateNov'25
- StatusUnder Construction
- Total Area1.42 Acres
- Total Launched villas35
- Launch DateOct'22
- AvailabilityNew and Resale
- RERA IDPR/GJ/VADODARA/VADODARA/Others/RAA11287/020323
Project Specifications
Doors
Main:
Decorative Main Door
Internal:
Flush Door
Fittings
Toilets:
Wash Basin
Kitchen:
Granite platform with stainless steel sink
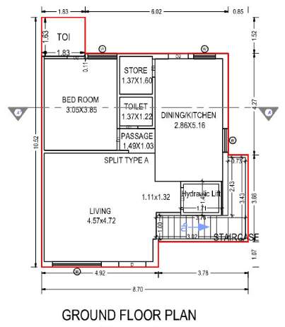
Vraj Gokulesh Greens Floor Plans
- 5 BHK
₹ 1.65 Cr
Vraj Gokulesh Greens Amenities
- Club House
- 24X7 Water Supply
- Full Power Backup
- Internal Roads
- Swimming Pool
- Children's play area
- Gymnasium
- Indoor Games
- Banquet Hall
- Rain Water Harvesting
- CCTV
- Car Parking
- Gated Community
- Mini Theatre
- Security Cabin
- Senior Citizen Sitout
- Entrance Lobby
- Gazebo
- Video Door Security
- Landscape Garden and Tree Planting
Vraj Gokulesh Greens Gallery
Payment Plans

About Vraj Enterprise
- Total Projects1
- Ongoing Projects1
Our phenomenal success is linked to the ability to deliver any type of industrial items anywhere within a short period of time. With clear focus on Total Dedication, Total Commitment and Total Quality. Vraj Enterprise has an impressive track record of customer satisfaction, enabling it to retain its position as a preferred industrial supplier for industries of any nature. Vraj Family is the force which drives us from within. At Vraj, We focus on Total Commitment, Quality and Customer satisfactio...
View more







































































