
9 Photos
1689 sq ft 3 BHK 3T Villa in Intellex Strategic Management Imperia
Price on request
Project Location
Old Town, Bhubaneswar
Basic Details
Amenities11
Specifications
Property Specifications
- CompletedStatus
- May'18Possession Start Date
- 1689 sq ftSize
- 23Total Launched villas
- Jan'16Launch Date
- ResaleAvailability
Live in your own villa in Bhubaneswar at the Intellex Imperia. Located in Old Town, the community has 23 units currently under construction and are available via the builder. The configuration on offer is 3 BHK, where each unit measures between 1200 and 1723 sq. ft. The prices of the property range from 28 to 34.5 lakh. The community has numerous amenities on offer for villa owners, including car parking, gymnasium, kids’ play area and club house. Intellex was established in 2009 and has w...more
Approved for Home loans from following banks
Payment Plans

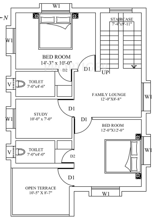
Price & Floorplan
3BHK+3T (1,689 sq ft) + Study Room
Price On Request

2D
- 3 Bathrooms
- 3 Bedrooms
Report Error
Gallery
Intellex ImperiaElevation
Intellex ImperiaFloor Plans
Intellex ImperiaNeighbourhood
Other properties in Intellex Strategic Management Imperia
- 3 BHK
Contact NRI Helpdesk on
Whatsapp(Chat Only)
Whatsapp(Chat Only)
+91-96939-69347
Contact Helpdesk on
Whatsapp(Chat Only)
Whatsapp(Chat Only)
+91-96939-69347
About Intellex Strategic Management

- 17
Years of Experience - 5
Total Projects - 2
Ongoing Projects - RERA ID
Similar Properties
- PT ASSIST
Shree 4BHK+4T (1,684 sq ft)by Shree Sidhi Vinayak BuildconOld TownPrice on request - PT ASSIST
Shree 3BHK+4T (1,744 sq ft)by Shree Sidhi Vinayak BuildconOld TownPrice on request - PT ASSIST
Indo 3BHK+3T (1,700 sq ft)by IndoKantilo, Sundarpada, BhubaneswarPrice on request - PT ASSIST
Royal Retreat 3BHK+3T (1,800 sq ft)by Royal Retreat ConstructionNear BJEM School, Ravi Talkies Square, Laxmi Sagar, BhubaneswarPrice on request - PT ASSIST
Trellis 3BHK+3T (1,580 sq ft)by Trellis InfrastructureBalabhadrapur, Sundarpada, BhubaneswarPrice on request
Discuss about Intellex Imperia
comment
Disclaimer
PropTiger.com is not marketing this real estate project (“Project”) and is not acting on behalf of the developer of this Project. The Project has been displayed for information purposes only. The information displayed here is not provided by the developer and hence shall not be construed as an offer for sale or an advertisement for sale by PropTiger.com or by the developer.
The information and data published herein with respect to this Project are collected from publicly available sources. PropTiger.com does not validate or confirm the veracity of the information or guarantee its authenticity or the compliance of the Project with applicable law in particular the Real Estate (Regulation and Development) Act, 2016 (“Act”). Read Disclaimer
The information and data published herein with respect to this Project are collected from publicly available sources. PropTiger.com does not validate or confirm the veracity of the information or guarantee its authenticity or the compliance of the Project with applicable law in particular the Real Estate (Regulation and Development) Act, 2016 (“Act”). Read Disclaimer





















