
5 Photos
1072 sq ft 2 BHK 2T Apartment in Aswin Foundation Pvt Ltd Aaron
Price on request
Project Location
Madipakkam, Chennai
Basic Details
Amenities2
Specifications
Property Specifications
- CompletedStatus
- Jan'14Possession Start Date
- 1072 sq ftSize
- 5Total Launched apartments
- Nov'12Launch Date
- ResaleAvailability
Aaron is a premium housing project launched by Aswin Builders in Madipakkam, Chennai. These 2, 3 BHK Apartment in OMR are available from 858 sqft to 1171 sqft. Among the many luxurious amenities that the project hosts are 24 X 7 Security, Power Backup etc.
Approved for Home loans from following banks
![HDFC (5244) HDFC (5244)]()
![Axis Bank Axis Bank]()
![PNB Housing PNB Housing]()
![Indiabulls Indiabulls]()
![Citibank Citibank]()
![DHFL DHFL]()
![L&T Housing (DSA_LOSOT) L&T Housing (DSA_LOSOT)]()
![IIFL IIFL]()
- + 3 more banksshow less
Price & Floorplan
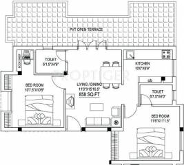
2BHK+2T (1,072 sq ft) Pooja Room
Price On Request

2D
- 2 Bathrooms
- 2 Balconies
- 2 Bedrooms
Report Error
Gallery
Aswin AaronElevation
Aswin AaronFloor Plans
Other properties in Aswin Foundation Pvt Ltd Aaron
- 2 BHK
- 3 BHK
Contact NRI Helpdesk on
Whatsapp(Chat Only)
Whatsapp(Chat Only)
+91-96939-69347
Contact Helpdesk on
Whatsapp(Chat Only)
Whatsapp(Chat Only)
+91-96939-69347
About Aswin Foundation Pvt Ltd

- 31
Years of Experience - 24
Total Projects - 1
Ongoing Projects - RERA ID
Established in the year 1995, Aswin Builders is a leading real estate builder based in Chennai. The company is headed by Mr. M.Britto Francis. Since its inception, the company is engaged in constructing residential houses and flats, duplex houses, guest houses, hostels and schools. Top Aswin Builders projects Aaron in Madipakkam, Chennai comprising 5 units of 2 and 3 BHK apartments with sizes ranging from 858 sq. ft. to 1,171 sq. ft. Crystal in Urapakkam, Chennai comprising 10 units of 1, 2 and... read more
Similar Properties
- PT ASSIST
Antony 3BHK+3Tby Antony AssociatesMadipakkam,ChennaiPrice on request - PT ASSIST
Isha 2BHK+2Tby Isha HomesVelachery, ChennaiPrice on request - PT ASSIST
Isha 3BHK+3Tby Isha HomesVelachery, ChennaiPrice on request - PT ASSIST
Khurinji 3BHK+3T (1,100 sq ft)by Khurinji HomesVelachery, ChennaiPrice on request - PT ASSIST
Natwest 2BHK+2Tby NatwestVelachery, ChennaiPrice on request
Discuss about Aswin Aaron
comment
Disclaimer
PropTiger.com is not marketing this real estate project (“Project”) and is not acting on behalf of the developer of this Project. The Project has been displayed for information purposes only. The information displayed here is not provided by the developer and hence shall not be construed as an offer for sale or an advertisement for sale by PropTiger.com or by the developer.
The information and data published herein with respect to this Project are collected from publicly available sources. PropTiger.com does not validate or confirm the veracity of the information or guarantee its authenticity or the compliance of the Project with applicable law in particular the Real Estate (Regulation and Development) Act, 2016 (“Act”). Read Disclaimer
The information and data published herein with respect to this Project are collected from publicly available sources. PropTiger.com does not validate or confirm the veracity of the information or guarantee its authenticity or the compliance of the Project with applicable law in particular the Real Estate (Regulation and Development) Act, 2016 (“Act”). Read Disclaimer



















