

- Possession Start DateOct'12
- StatusCompleted
- Total Launched apartments5
- Launch DateAug'11
- AvailabilityResale
More about VJS Associates Kumaran Krishnaa
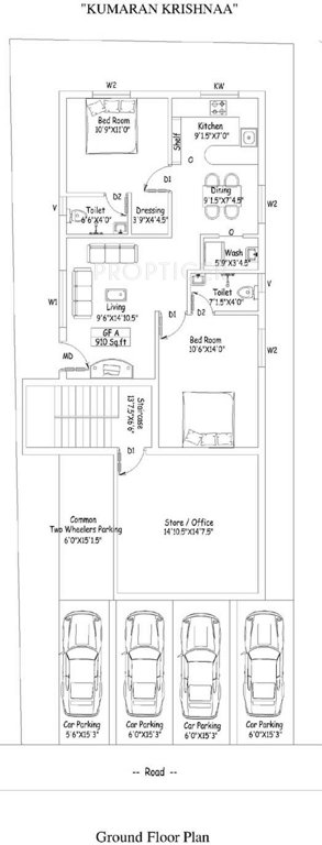
Located in Palavakkam, Chennai, Kumaran Krishnaa is a premium housing project launched by VJS Associates. The project offers Apartment in 2 BHK configurations available from 910 sqft to 965 sqft. The project is Completed project and possession in Oct 12. Kumaran Krishnaa has many amenities, such as Rain Water Harvesting, 24 X 7 Security, Intercom etc.
![HDFC (5244) HDFC (5244)]()
![Axis Bank Axis Bank]()
![PNB Housing PNB Housing]()
![Indiabulls Indiabulls]()
![Citibank Citibank]()
![DHFL DHFL]()
![L&T Housing (DSA_LOSOT) L&T Housing (DSA_LOSOT)]()
![IIFL IIFL]()
- + 3 more banksshow less
Project Specifications
- 2 BHK
- Rain Water Harvesting
- Intercom
- 24 X 7 Security
VJS Associates Kumaran Krishnaa Gallery
About VJS Associates

- Years of experience30
- Total Projects12
- Ongoing Projects0































