
3 Photos
680 sq ft 2 BHK 2T Apartment in Pushkar Properties The Water Front
Price on request
Project Location
Korattur, Chennai
Basic Details
Amenities7
Specifications
Property Specifications
- CompletedStatus
- Sep'09Possession Start Date
- 680 sq ftSize
- 8Total Launched apartments
- ResaleAvailability
Salient Features
- Known for amenities like landscaped gardens, swimming pool, olympic size swimming pool, tree plantation, rainwater harvesting, children play area
- Accessibility to key landmarks
- Schools, banks within close vicinity
Korattur in Chennai has a ready to move in project of great apartments by the Pushkar the Water Front Company. The neighbourhood is well settled with high school, bank, primary school, play school, atm, hospital, office complex, play school, bus stand, and restaurant etc facilities near at hand. Other amenities that this project offers are a community with gates, a nice landscape, well maintained sewage lines, gym, rain water harvesting system, security service, there is an availability of parki...more
Approved for Home loans from following banks
![HDFC (5244) HDFC (5244)]()
![Axis Bank Axis Bank]()
![PNB Housing PNB Housing]()
![Indiabulls Indiabulls]()
![Citibank Citibank]()
![DHFL DHFL]()
![L&T Housing (DSA_LOSOT) L&T Housing (DSA_LOSOT)]()
![IIFL IIFL]()
- + 3 more banksshow less
Price & Floorplan
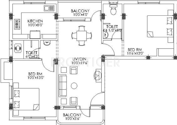
2BHK+2T (680 sq ft)
Price On Request

2D
- 2 Bathrooms
- 2 Balconies
- 2 Bedrooms
Report Error
Gallery
Pushkar The Water FrontElevation
Pushkar The Water FrontFloor Plans
Other properties in Pushkar Properties The Water Front
Contact NRI Helpdesk on
Whatsapp(Chat Only)
Whatsapp(Chat Only)
+91-96939-69347
Contact Helpdesk on
Whatsapp(Chat Only)
Whatsapp(Chat Only)
+91-96939-69347
About Pushkar Properties

- 23
Years of Experience - 121
Total Projects - 17
Ongoing Projects - RERA ID
Pushkar Properties Private Limited, incorporated in the year 2003, is a front runner in the Indian construction scene on both the residential and commercial front. We are a company that is solely driven by the lasting principles of commitment to customer satisfaction. Based on a strong second-to-none approach, we have established for ourselves, a solid reputation over the last couple of years for exceeding customer expectations on all fronts. Elegance of design and a strong commitment to quality... read more
Similar Properties
- PT ASSIST
Rajus 2BHK+2Tby Rajus FlatAnna Nagar, ChennaiPrice on request - PT ASSIST
Rajus 3BHK+3Tby Rajus FlatAnna Nagar, ChennaiPrice on request - PT ASSIST
ZEN 2BHK+2Tby ZENPlot No : 325, 2nd Avenue, Annanagar Western Extn,ChennaiPrice on request - PT ASSIST
ZEN 3BHK+3Tby ZENPlot No : 445, C - Sector, 5th Steet, Anna Nagar Western Extn., ChennaiPrice on request - PT ASSIST
Pushkar 3BHK+3Tby Pushkar PropertiesPlot No. 2486, Door No. 11, "AJ" Block, 5th Street, Anna Nagar, ChennaiPrice on request
Discuss about Pushkar The Water Front
comment
Disclaimer
PropTiger.com is not marketing this real estate project (“Project”) and is not acting on behalf of the developer of this Project. The Project has been displayed for information purposes only. The information displayed here is not provided by the developer and hence shall not be construed as an offer for sale or an advertisement for sale by PropTiger.com or by the developer.
The information and data published herein with respect to this Project are collected from publicly available sources. PropTiger.com does not validate or confirm the veracity of the information or guarantee its authenticity or the compliance of the Project with applicable law in particular the Real Estate (Regulation and Development) Act, 2016 (“Act”). Read Disclaimer
The information and data published herein with respect to this Project are collected from publicly available sources. PropTiger.com does not validate or confirm the veracity of the information or guarantee its authenticity or the compliance of the Project with applicable law in particular the Real Estate (Regulation and Development) Act, 2016 (“Act”). Read Disclaimer
















