
20 Photos
PROJECT RERA ID : P52100050458 , P52100033531 , P52100033528
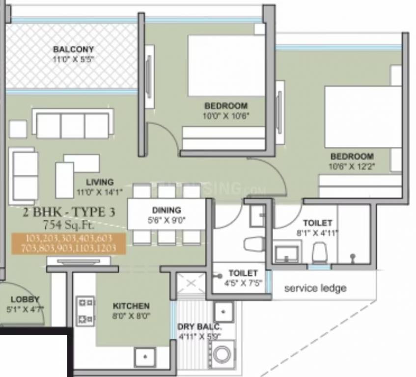
754 sq ft 2 BHK 2T Apartment in Mihir Group Amaraby Mihir Group
₹ 94.24 L
See inclusions
Project Location
Wakad, Pune
Basic Details
Amenities3
Property Specifications
- LaunchStatus
- Nov'26Possession Start Date
- Feb'22Launch Date
- NewAvailability
Salient Features
- Pimpri Railway Station - 15 km
- Proposed Pure Metro Station 0.7 km
- Balewadi High Street - 4.5 km
Payment Plans

Price & Floorplan
2BHK+2T (754.01 sq ft)
₹ 94.24 L
See Price Inclusions

2D
- 2 Bathrooms
- 2 Bedrooms
- 754 sqft
carpet area
property size here is carpet area. Built-up area is now available
Report Error
Gallery
Mihir AmaraElevation
Mihir AmaraAmenities
Mihir AmaraFloor Plans
Mihir AmaraNeighbourhood
Mihir AmaraConstruction Updates
Mihir AmaraOthers
Other properties in Mihir Group Amara
Contact NRI Helpdesk on
Whatsapp(Chat Only)
Whatsapp(Chat Only)
+91-96939-69347
Contact Helpdesk on
Whatsapp(Chat Only)
Whatsapp(Chat Only)
+91-96939-69347
About Mihir Group

- 5
Total Projects - 4
Ongoing Projects - RERA ID
MIHIR GROUP has positioned itself as a niche market player, delivering premium projects at prime locations in Pune and adjoining areas. Backed by state-of-the-art construction technology and resources, we have the ability to take up mega residential and Completed Projects.Over the last 22+ years, we have delivered 21+ landmark creations aggregating 10Lac + SQFT of built space. Our growing portfolio of high-end residential and commercial properties symbolizes the mounting confidence of customers ... read more
Similar Properties
- PT ASSIST
Namrata 1BHK+1T (819 sq ft) + Study Roomby Namrata GroupPawana Nagar, Rahatani₹ 94.15 L - PT ASSIST
RR 1BHK+1T (741 sq ft)by RR LunkadWakadPrice on request - PT ASSIST
AB 2BHK+2T (770 sq ft)by AB LandmarksSurvey No. 2/2/5/1, Near HP Petrol Pump, Marunji - Hinjewadi Road, MarunjiPrice on request - PT ASSIST
2BHK+2T (850 sq ft)by Austin RealtyKaspate Wasti, Wakad, PunePrice on request - PT ASSIST
Anshul 2BHK+2T (674.14 sq ft)by Anshul GroupSurvey No 226, Hissa 1B, Survey No 226, Hissa No 1C 1 To 3, Mulshi, Wakad, PunePrice on request
Discuss about Mihir Amara
comment
Disclaimer
PropTiger.com is not marketing this real estate project (“Project”) and is not acting on behalf of the developer of this Project. The Project has been displayed for information purposes only. The information displayed here is not provided by the developer and hence shall not be construed as an offer for sale or an advertisement for sale by PropTiger.com or by the developer.
The information and data published herein with respect to this Project are collected from publicly available sources. PropTiger.com does not validate or confirm the veracity of the information or guarantee its authenticity or the compliance of the Project with applicable law in particular the Real Estate (Regulation and Development) Act, 2016 (“Act”). Read Disclaimer
The information and data published herein with respect to this Project are collected from publicly available sources. PropTiger.com does not validate or confirm the veracity of the information or guarantee its authenticity or the compliance of the Project with applicable law in particular the Real Estate (Regulation and Development) Act, 2016 (“Act”). Read Disclaimer
































