
3 Photos
1953 sq ft 3 BHK 4T Villa in Penta Homes Spartaby Penta Homes
Price on request
Project Location
Nellikunnu, Thrissur
Basic Details
Amenities5
Specifications
Property Specifications
- CompletedStatus
- Sep'15Possession Start Date
- 1953 sq ftSize
- 30Total Launched villas
- Dec'11Launch Date
- ResaleAvailability
Penta Homes has launched its premium housing project, Sparta, in Nellikunnu, Thrissur. The project offers 3, 4 BHK Villa from 1600 sqft to 2638 sqft in Thrissur Central. Among the many luxurious amenities that the project hosts are Elegant Roads With Streetlight And Guardroom, Club House, 24 X 7 Security, Children's play area, Landscaped Gardens etc. Penta Homes Sparta is Completed project and possession in Oct 15.
Price & Floorplan
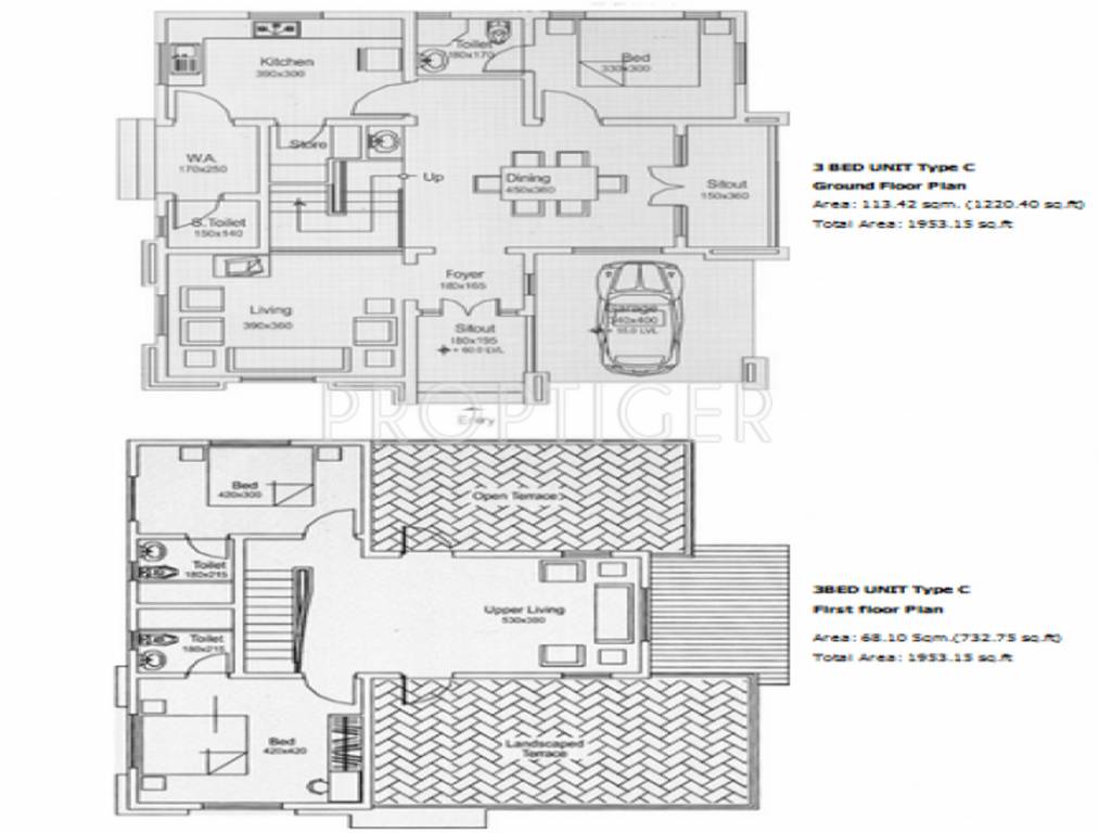
3BHK+4T (1,953 sq ft)
Price On Request

2D
- 4 Bathrooms
- 3 Bedrooms
Report Error
Gallery
Penta SpartaElevation
Penta SpartaNeighbourhood
Other properties in Penta Homes Sparta
- 3 BHK
- 4 BHK
Contact NRI Helpdesk on
Whatsapp(Chat Only)
Whatsapp(Chat Only)
+91-96939-69347
Contact Helpdesk on
Whatsapp(Chat Only)
Whatsapp(Chat Only)
+91-96939-69347
About Penta Homes

- 7
Total Projects - 0
Ongoing Projects - RERA ID
Honesty, Integrity, an unwavering commitment to quality, and an uncompromising dedication to provide the best possible value to its customers, Penta Homes is poised to make a splash in Thrissur,Kerala residential real estate market. It’s success in residential projects especially group willa projects, has positioned Penta Homes as a leader in residential real estate development. The pleasure of maintaining a personal garden. Time spent lazing on th lawn with a book. Or getting wet in the r... read more
Similar Properties
- PT ASSIST
Penta 3BHK+4T (1,953 sq ft)by Penta HomesThrissur Rd, Mahatma Nagar, Nellikunnu, ThrissurPrice on request - PT ASSIST
Confident 3BHK+3T (1,930 sq ft)by Confident GroupChellakottukara, KuriachiraPrice on request - PT ASSIST
Forms Builders 4BHK+4T (2,000 sq ft)by Forms Builders And DevelopersKrishnapuram Village, Nellikunnu, ThrissurPrice on request - PT ASSIST
Forms Builders 3BHK+3T (1,700 sq ft)by Forms Builders And DevelopersKrishnapuram Village, Nellikunnu, ThrissurPrice on request - PT ASSIST
Akshaya 3BHK+3T (1,935 sq ft) + Study Roomby Akshaya Developers ThrissurPatturaikkalPrice on request
Discuss about Penta Sparta
comment
Disclaimer
PropTiger.com is not marketing this real estate project (“Project”) and is not acting on behalf of the developer of this Project. The Project has been displayed for information purposes only. The information displayed here is not provided by the developer and hence shall not be construed as an offer for sale or an advertisement for sale by PropTiger.com or by the developer.
The information and data published herein with respect to this Project are collected from publicly available sources. PropTiger.com does not validate or confirm the veracity of the information or guarantee its authenticity or the compliance of the Project with applicable law in particular the Real Estate (Regulation and Development) Act, 2016 (“Act”). Read Disclaimer
The information and data published herein with respect to this Project are collected from publicly available sources. PropTiger.com does not validate or confirm the veracity of the information or guarantee its authenticity or the compliance of the Project with applicable law in particular the Real Estate (Regulation and Development) Act, 2016 (“Act”). Read Disclaimer










