
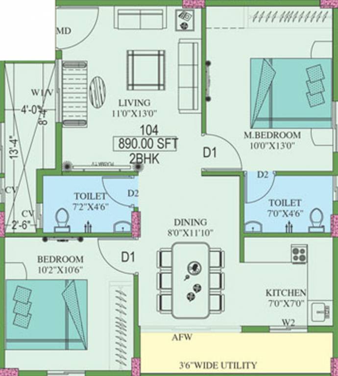
890 sq ft 2 BHK 2T Apartment in Kruthi Developers Lake View Enclave
Price on request
Project Location
Indira Nagar, Bangalore
Basic Details
Amenities14
Specifications
Property Specifications
- CompletedStatus
- Jul'16Possession Start Date
- 890 sq ftSize
- 48Total Launched apartments
- Jan'15Launch Date
- ResaleAvailability
.
Approved for Home loans from following banks
Price & Floorplan
2BHK+2T (890 sq ft)
Price On Request

2D
- 2 Bathrooms
- 2 Bedrooms
Report Error
Gallery
Kruthi Lake View EnclaveElevation
Kruthi Lake View EnclaveFloor Plans
Kruthi Lake View EnclaveNeighbourhood
Kruthi Lake View EnclaveOthers
Other properties in Kruthi Developers Lake View Enclave
- 2 BHK
Contact NRI Helpdesk on
Whatsapp(Chat Only)
Whatsapp(Chat Only)
+91-96939-69347
Contact Helpdesk on
Whatsapp(Chat Only)
Whatsapp(Chat Only)
+91-96939-69347
About Kruthi Developers

- 2
Total Projects - 0
Ongoing Projects - RERA ID
Similar Properties
- PT ASSIST
Bharat 2BHK+2T (1,020 sq ft)by Bharat BuildersIndira NagarPrice on request - PT ASSIST
Reputed Builder 2BHK+2T (950 sq ft)by Reputed Builder15th Cross Road, Eshwara Layout, IndiranagarPrice on request - PT ASSIST
Sreenidhi 3BHK+3Tby Sreenidhi RealtorsNew ThippasandraPrice on request - PT ASSIST
Gopalan 2BHK+2T (950 sq ft)by Gopalan Enterprises79, 13th Cross, 6th Main Rd, 2nd Stage, IndiranagarPrice on request - PT ASSIST
Golden 3BHKby Golden PropertiesKodihalli On Old Airport RoadPrice on request
Discuss about Kruthi Lake View Enclave
comment
Disclaimer
PropTiger.com is not marketing this real estate project (“Project”) and is not acting on behalf of the developer of this Project. The Project has been displayed for information purposes only. The information displayed here is not provided by the developer and hence shall not be construed as an offer for sale or an advertisement for sale by PropTiger.com or by the developer.
The information and data published herein with respect to this Project are collected from publicly available sources. PropTiger.com does not validate or confirm the veracity of the information or guarantee its authenticity or the compliance of the Project with applicable law in particular the Real Estate (Regulation and Development) Act, 2016 (“Act”). Read Disclaimer
The information and data published herein with respect to this Project are collected from publicly available sources. PropTiger.com does not validate or confirm the veracity of the information or guarantee its authenticity or the compliance of the Project with applicable law in particular the Real Estate (Regulation and Development) Act, 2016 (“Act”). Read Disclaimer
















