
PROJECT RERA ID : P51900005188, P51900008032, P51900010178, P51900006593, P51900004544, P51900004666
950 sq ft 2 BHK 2T Apartment in L And T Realty Crescent Bay
Price on request
Project Location
Parel, Mumbai
Basic Details
Amenities70
Specifications
Property Specifications
- CompletedStatus
- Feb'23Possession Start Date
- 10 AcresTotal Area
- 282Total Launched apartments
- Oct'12Launch Date
- ResaleAvailability
Salient Features
- IGBC pre-certified silver-rated project
- Close proximity to Eastern freeway
- Ambedkar Nagar Metro Station 1.2 KM
- Mumbai Sewri Railway Station 1.2 KM
- King Edward Memorial Hospital 1.1 KM
L and T Realty Limited Crescent Bay project is registered on rera with following RERA Ids:-P51900008032(Crescent Bay - T1 - 40, 41 Floors), P51900010178(Crescent Bay - T2), P51900005188(Crescent Bay - T3), P51900006593(Crescent Bay - T4), P51900004544(Crescent Bay - T5), P51900004666(Crescent Bay - T6). Larsen & Toubro Limited (L&T) is a renowned technology, engineering, construction and manufacturing firm. Crescent Bay, is launched by L&T Realty in collaboration with Omkar in Parel,...more
Approved for Home loans from following banks
![HDFC (5244) HDFC (5244)]()
![SBI - DEL02592587P SBI - DEL02592587P]()
![Axis Bank Axis Bank]()
![PNB Housing PNB Housing]()
- LIC Housing Finance
Payment Plans

Price & Floorplan
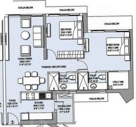
2BHK+2T (950 sq ft)
Price On Request

2D
- 2 Bathrooms
- 2 Bedrooms
- 950 sqft
carpet area
property size here is carpet area. Built-up area is now available
Report Error
Gallery
L And T Crescent BayElevation
L And T Crescent BayVideos
L And T Crescent BayAmenities
L And T Crescent BayFloor Plans
L And T Crescent BayNeighbourhood
L And T Crescent BayOthers
Home Loan & EMI Calculator
Select a unit
Loan Amount( ₹ )
Loan Tenure(in Yrs)
Interest Rate (p.a.)
Monthly EMI: ₹ 0
Apply Homeloan
Other properties in L And T Realty Crescent Bay
- 2 BHK
- 3 BHK
- 4 BHK
Contact NRI Helpdesk on
Whatsapp(Chat Only)
Whatsapp(Chat Only)
+91-96939-69347
Contact Helpdesk on
Whatsapp(Chat Only)
Whatsapp(Chat Only)
+91-96939-69347
About L And T Realty

- 87
Years of Experience - 60
Total Projects - 31
Ongoing Projects - RERA ID
An Overview:L&T Realty is the real-estate development division of Larsen & Toubro, a company 75 years ago. L&T is a well-known Indian multinational in engineering, construction, technology, manufacturing and financial services, with operations across the globe, whose products and systems are marketed in over 30 countries. L&T Realty follows a strong, customerfocused approach and this has helped the company to become extremely successful in the real-estate industry. The company is... read more
Similar Properties
- PT ASSIST
Dosti 2BHK+2T (967 sq ft)by Dosti Realty MumbaiChina Mill Compound, Tokersi Jivraj Road, ParelPrice on request - PT ASSIST
Rupji 2BHK+2T (985 sq ft)by Rupji ConstructionsBhuiwada, Naka, GD Ambekar Road, ParelPrice on request - PT ASSIST
Rupji 2BHK+2T (900 sq ft)by Rupji ConstructionsAcharya Donde Marg, ParelPrice on request - PT ASSIST
Tata 2BHK+2T (1,036 sq ft)by Tata RealtyParelPrice on request - PT ASSIST
TATA 2BHK+2T (1,050 sq ft)by TATA Housing DevelopmentPearlPrice on request
Discuss about L And T Crescent Bay
comment
Disclaimer
PropTiger.com is not marketing this real estate project (“Project”) and is not acting on behalf of the developer of this Project. The Project has been displayed for information purposes only. The information displayed here is not provided by the developer and hence shall not be construed as an offer for sale or an advertisement for sale by PropTiger.com or by the developer.
The information and data published herein with respect to this Project are collected from publicly available sources. PropTiger.com does not validate or confirm the veracity of the information or guarantee its authenticity or the compliance of the Project with applicable law in particular the Real Estate (Regulation and Development) Act, 2016 (“Act”). Read Disclaimer
The information and data published herein with respect to this Project are collected from publicly available sources. PropTiger.com does not validate or confirm the veracity of the information or guarantee its authenticity or the compliance of the Project with applicable law in particular the Real Estate (Regulation and Development) Act, 2016 (“Act”). Read Disclaimer






















































