
18 Photos
PROJECT RERA ID : P51700000950
1043 sq ft 3 BHK 3T Apartment in Rustomjee Builders Mumbai Azziano Wing J
Price on request
Project Location
Thane West, Mumbai
Basic Details
Amenities88
Specifications
Property Specifications
- CompletedStatus
- Feb'19Possession Start Date
- 200Total Launched apartments
- Jan'12Launch Date
- ResaleAvailability
Salient Features
- Tallest building in the locality
- 3 open side properties, spacious properties
- 10 Min from Thane railway station.
- Separate floor for commercial activities
.
Approved for Home loans from following banks
Payment Plans

Price & Floorplan
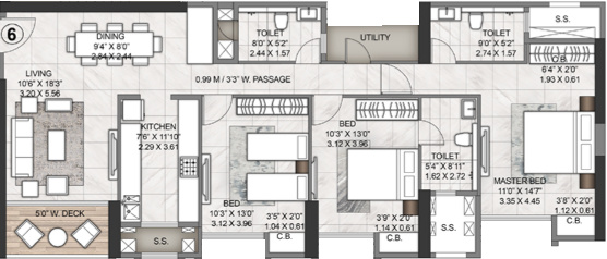
3BHK+3T (1,043.35 sq ft)
Price On Request

2D
- 3 Bathrooms
- 3 Bedrooms
- 1043 sqft
carpet area
property size here is carpet area. Built-up area is now available
Report Error
Gallery
Rustomjee Azziano Wing JElevation
Rustomjee Azziano Wing JVideos
Rustomjee Azziano Wing JAmenities
Rustomjee Azziano Wing JFloor Plans
Rustomjee Azziano Wing JNeighbourhood
Rustomjee Azziano Wing JOthers
Other properties in Rustomjee Builders Mumbai Azziano Wing J
- 2 BHK
- 3 BHK
Contact NRI Helpdesk on
Whatsapp(Chat Only)
Whatsapp(Chat Only)
+91-96939-69347
Contact Helpdesk on
Whatsapp(Chat Only)
Whatsapp(Chat Only)
+91-96939-69347
About Rustomjee Builders Mumbai

- 30
Years of Experience - 130
Total Projects - 47
Ongoing Projects - RERA ID
Rustomjee has successfully managed to carve a niche for itself in the contemporary real estate market in India. The company has specialized in the construction of residential units and commercial centres and is known for its strict delivery schedules and quality standards. At Rustomjee, quality is never compromised by prices and other aspects. Additionally, the company also believes in incorporating customer opinions into business decisions in addition to laying high emphasis on teamwork. Custom... read more
Similar Properties
- PT ASSIST
Lodha 2BHK+2T (1,044 sq ft)by Lodha GroupMajiwadaPrice on request - PT ASSIST
Rustomjee 2BHK+2T (1,040 sq ft)by Rustomjee ConstructionsThane West, MumbaiPrice on request - PT ASSIST
Lodha 2BHK+2T (1,053 sq ft)by Lodha GroupThane WestPrice on request - PT ASSIST
Rustomjee 2BHK+2T (1,065 sq ft)by Rustomjee ConstructionsNear Majiwade Junction, Off Eastern Express Highway Thane (West)Price on request - PT ASSIST
SD Bhalerao 3BHK+3Tby SD BhaleraoThane West, MumbaiPrice on request
Discuss about Rustomjee Azziano Wing J
comment
Disclaimer
PropTiger.com is not marketing this real estate project (“Project”) and is not acting on behalf of the developer of this Project. The Project has been displayed for information purposes only. The information displayed here is not provided by the developer and hence shall not be construed as an offer for sale or an advertisement for sale by PropTiger.com or by the developer.
The information and data published herein with respect to this Project are collected from publicly available sources. PropTiger.com does not validate or confirm the veracity of the information or guarantee its authenticity or the compliance of the Project with applicable law in particular the Real Estate (Regulation and Development) Act, 2016 (“Act”). Read Disclaimer
The information and data published herein with respect to this Project are collected from publicly available sources. PropTiger.com does not validate or confirm the veracity of the information or guarantee its authenticity or the compliance of the Project with applicable law in particular the Real Estate (Regulation and Development) Act, 2016 (“Act”). Read Disclaimer

































